Множественный выбор
Выбрать номинацию

Усадьба «Кротость»

Ввиду того, что строительный рынок в России развивается, с одной стороны, очень стремительно, а с другой — крайне хаотично, проблемой современной архитектуры, на наш взгляд, стало отсутствие качественных проектов для среднего и эконом-класса. Застройщики частных домов площадью до 250–300 м² зачастую не могут позволить себе услуги хорошего архитектора, чьи работы стоят дорого.

Единственным выходом из этой ситуации нам видится создание коллекций типовых проектов, которые заказчики могли бы приобретать по умеренной цене благодаря их многоразовому использованию.

Пока неясно, кто будет создавать такие серии — крупные застройщики или частные архитектурные мастерские. Мы решили не ждать и сделать это своими силами, за свой счёт, на уровне эскизных проектов. И рады представить две серии типовых проектов под названиями «Русский Север» и «Русская Усадьба».

Проект представляет собой двухэтажное здание в русском стиле, со сложной кролей, мезонином, мансардой. Основная идея — полностью раскрыть красоту русской архитектуры, придерживаясь всех правил ордеров, вписывая их во внешний облик здания.

Несущие стены каркасно-обшивной конструкции с деревянным каркасом и заполнением высокоэффективным минераловатным утеплителем. В качестве конструктивных элементов каркаса приняты строганные деревянные изделия из пилёной древесины.

Межэтажные перекрытия по деревянным балкам (лагам) с заполнением минераловатным утеплителем или звукоизоляцией в зависимости от назначения.

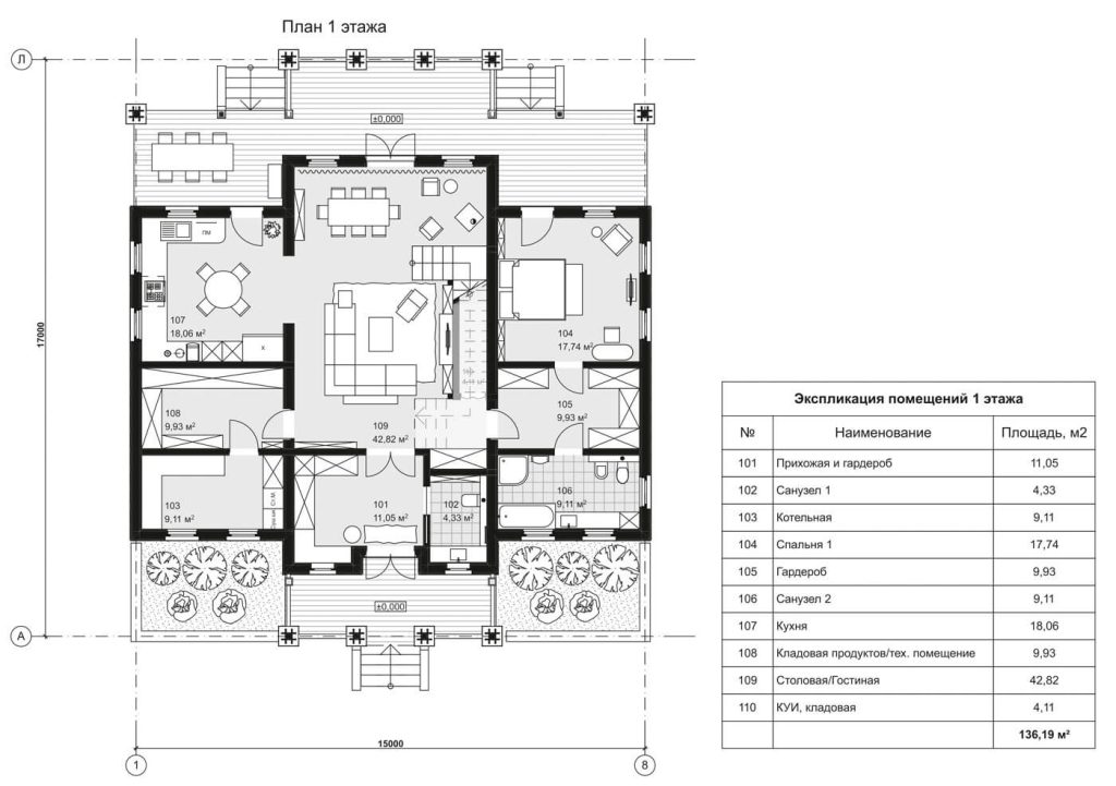
Планировка первого этажа собрана в центре общественной зоны, в центре, которой находиться столовая/гостиная, к ней примыкает просторная кухня и кладовая продуктов. Приватной зона находиться главная спальня, со своим санузлом и гардеробом.

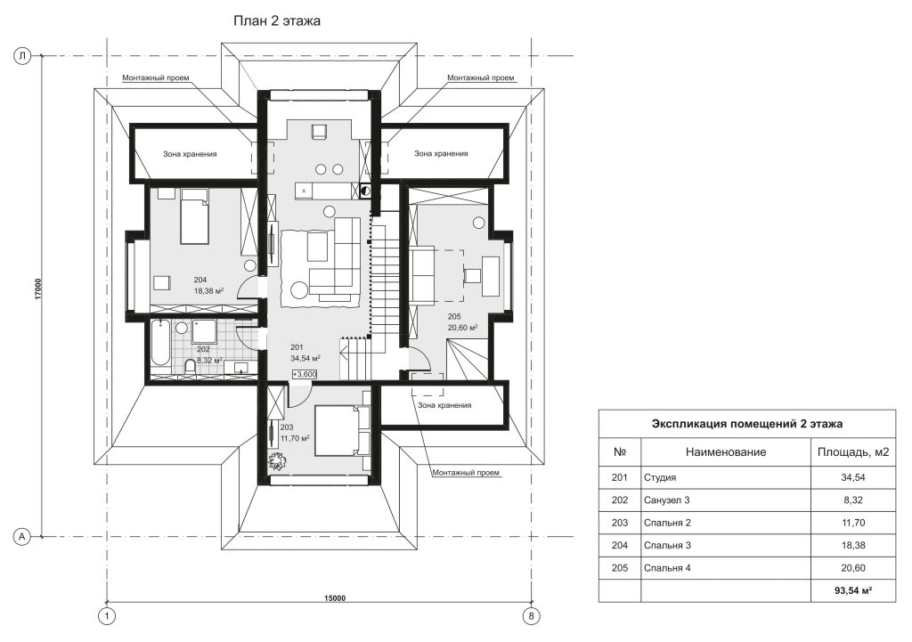
На мансардном этаже находиться студия, служащая зоной отдыха и центром данного этажа. К ней примыкает четные помещения. Две детских комнаты, санузел и одна гостевая спальня.

Крыша скатная с мансардой и мезонином, по деревянным стропилам, утепленная. Кровля из оцинкованной кровельной сталис полимерным покрытием, фальцевая.

Выставка конкурсных проектов
ВЫСТАВКА КРАСИВЫЕ ДОМА - 2026

ФОТОГАЛЕРЕЯ
ЭКСПОЗИЦИИ
КОНКУРСНЫХ
ПРОЕКТОВ

КАК ЭТО БЫЛО
Выставка конкурсных проектов проходит дважды в год (Весна | Осень)

Отзывы

Можно использовать **жирный**, *курсив*, [ссылку](https://example.com), списки через - или 1.
Пока отзывов нет. Будьте первым.