Усадьба «Пулонга»
Ввиду того, что строительный рынок в России развивается, с одной стороны, очень стремительно, а с другой — крайне хаотично, проблемой современной архитектуры, на наш взгляд, стало отсутствие качественных проектов для среднего и эконом-класса. Застройщики частных домов площадью до 250–300 м² зачастую не могут позволить себе услуги хорошего архитектора, чьи работы стоят дорого.
Единственным выходом из этой ситуации нам видится создание коллекций типовых проектов, которые заказчики могли бы приобретать по умеренной цене благодаря их многоразовому использованию.
Пока неясно, кто будет создавать такие серии — крупные застройщики или частные архитектурные мастерские. Мы решили не ждать и сделать это своими силами, за свой счёт, на уровне эскизных проектов. И рады представить две серии типовых проектов под названиями «Русский Север» и «Русская Усадьба».
Дом «Пулонга» задуман как современное комфортное жильё для семьи, где просторные общественные зоны сочетаются с уединенными приватными помещениями. Архитектурная концепция основана на гармоничном соединении современного дизайна и учёта природных условий. Фасады решены лаконично: большие окна в зоне гостиной открывают виды и обеспечивают инсоляцию, натуральные материалы и металлическая крыша органично вписывают дом в северный ландшафт. Ориентация дома на участке выбрана так, чтобы основные помещения ориентированы на лучшие виды и южную сторону. Это делает дом энергосберегающим и устойчивым к особенностям карельского климата.
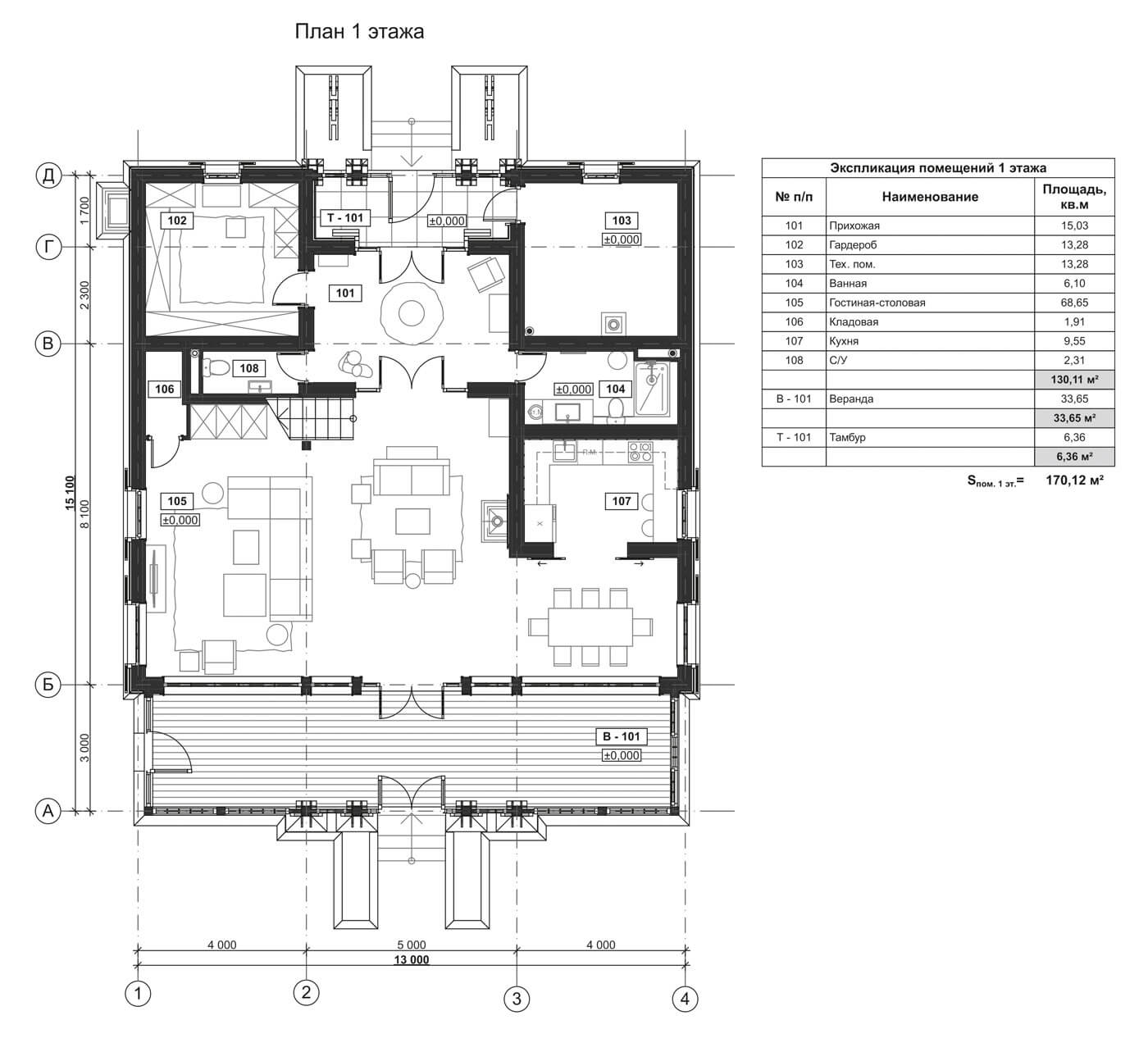
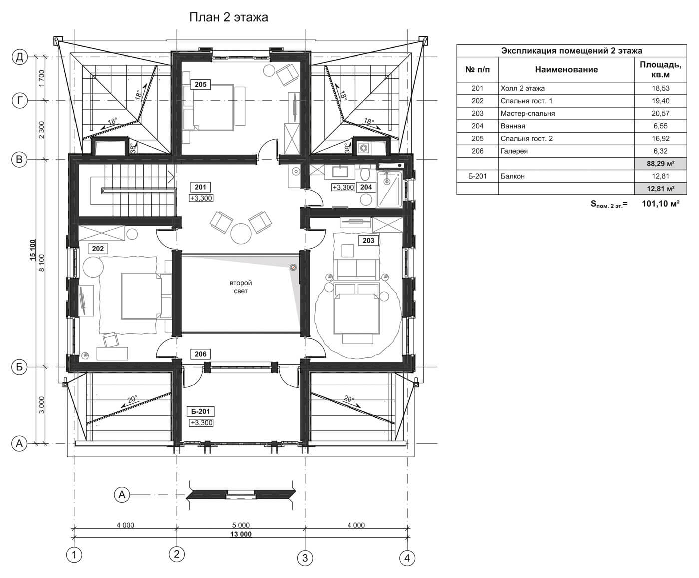
Планировочная структура предусматривает открытую гостиную со столовой и кухней, объединенное в общее пространство. Высокие потолки, и зона второго света визуально увеличивают объём, наполняют светом и объединяют этажи. Из гостиной предусмотрен выход на веранду, продолжая жилую зону на открытом воздухе. На втором этаже располагаются спальни, а так же выход на балкон. Вспомогательные помещения находятся на первом этаже, что делает дом удобным для эксплуатации и чётко делит его на общественную и приватную зону.











