Усадьба Склоны
Этот дом — это еще не весь ансамбль. Это всего лишь баня, стоящая на краю участка. Край участка — это еще и край резкого склона, укрепленного корнями старых деревьев.
С этого склона и открываются самые великолепные виды, ради которых участок и был куплен. С этой же горки и будут кататься зимой дружные, разгоряченные гости!
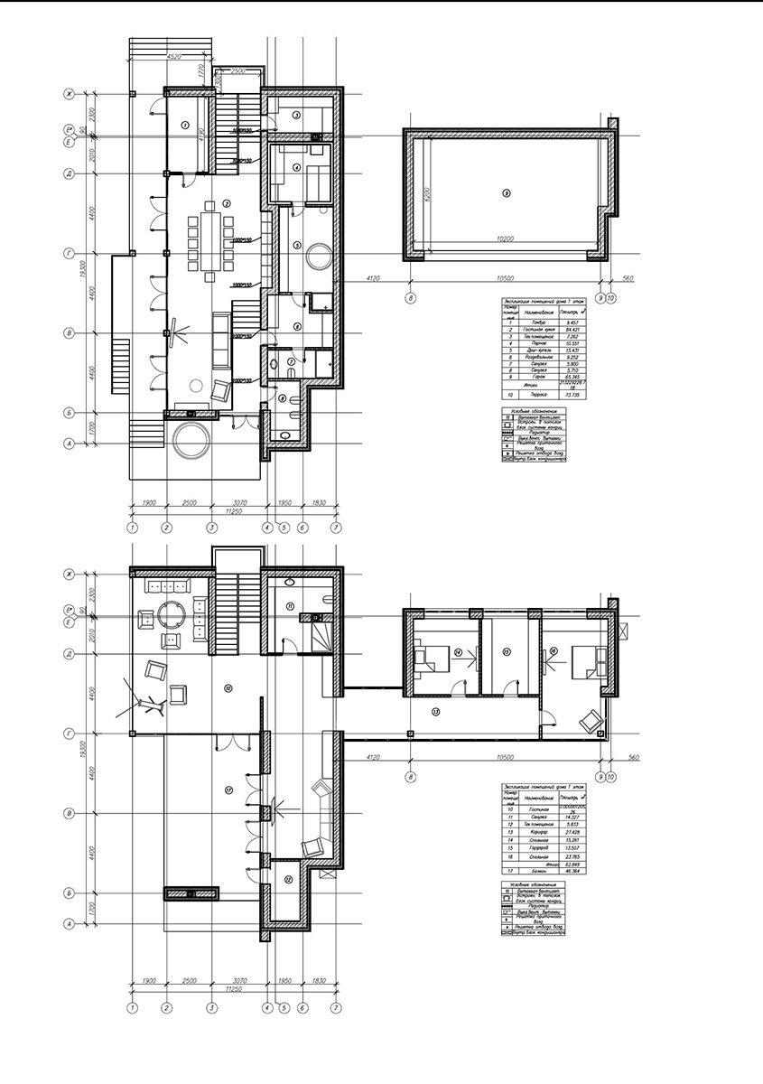
К дому ведет окружной подъезд, используемый для проезда обслуживающей техники и подъезду к гаражу. Наличие именно этой дороги и местоположение на участке и продиктовало именно такую конфигурацию дома. В нем нет ни одного случайно поставленного окна и видовой точки.
Дом собран из 2-х объемов. Это основной банный комплекс с кухней-гостиной-столовой, где практически каждое помещение имеет выход на террасы. На одной из них находится теплая «зимняя» ванна.
На верхней террасе, над столовой, также есть гриль-очаг. Площадка этой террасы является продолжением резкого уступчатого ландшафта.
Гостиная на втором этаже предназначена для устройства небольшой обсерватории. Виды, небо...
Второй объем — гараж с блоком гостевых спален, соединенный с основным объемом стеклянной галереей. Окна гостевых спален выходят на внутренний двор участка, общий с основным домом. При необходимости это полноценная жилплощадь для второй семьи.














