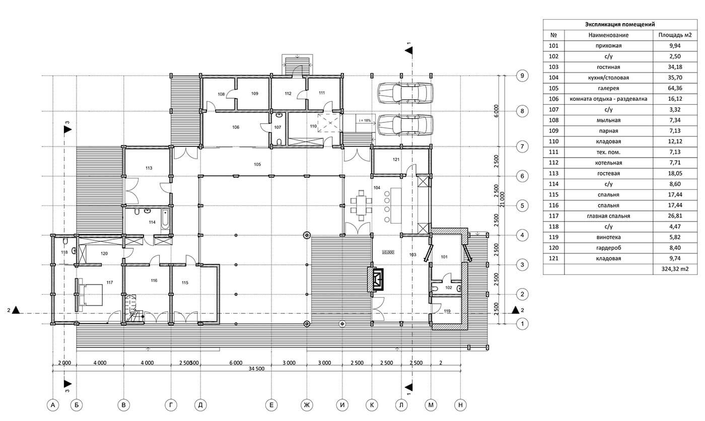
Усадьба в Антоновке
Усадьба в Антоновке, наверное, слишком громкое название для этого дома, так как проектировался он как дом выходного дня. В себе он содержит самый минимальный набор, необходимый для проживания. Это небольшая гостиная с кухней-столовой, главная спальня, две детские и главная часть этого сооружения — внутренний двор, или патио. Поскольку заказчик увлеченный путешественник и очень хотел, чтобы долгими, зимними вечерами этот дом напоминал ему о том времени, которое он провел на Бали, в Тайланде или где-нибудь еще в экзотических странах. Именно внутренний двор является центром композиции этого дома.
Технология, с которой мы любим работать — это фахверк, потому что позволяет архитекторам чувствовать себя максимально свободно практически в решении любой задачи.
Большая площадь остекления, чистые пропорции, отсутствие излишеств в отделке — все продиктовано стремлением создать гармонию между архитектурой дома, ландшафтом и интерьером.








