Множественный выбор
Выбрать номинацию

Усадьба Завидное

Проект современного загородного дома с элементами ретро в интерьере задумывался как «долгосрочный». Классический принцип, «тяжелый низ и легкий верх», использование простых геометрических форм и строгих линий на фасаде, изящно дополненных мелкой пластикой, сделали дом неповторимым.

В сравнении с площадью участка площадь застройки дома невелика. При этом дом выглядит достаточно внушительно. За счет большого перепада рельефа на участке пришлось активно использовать подпорные стены и частично углубить первый этаж. Все это и нестандартные объемно-планировочные решения позволили сделать композицию здания интересной.

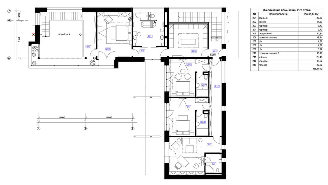
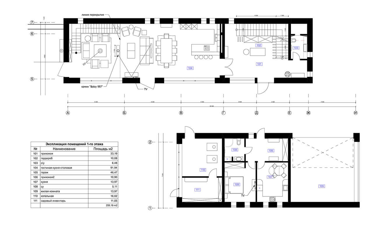
Дом состоит из нескольких блоков, причем часть помещений второго этажа висит в буквальной смысле в воздухе. На первом этаже расположены хозяйственные помещения и основная гостиная с кухней и столовой. В подвальном этаже расположены спа с зоной отдыха и вспомогательные помещения. На втором этаже отдельно — жилой блок хозяев и гостевые, кабинет хозяйки. Планировка помещений довольно компактна. Две внутренние лестницы ведут отдельно в гостевой и хозяйский блоки.

Активно задействованные на фасадах фактуры дерева и камня играют ключевую роль в оформлении интерьера. Дополняя их самыми разными материалами, дизайнер добивается неожиданных и эффектных сочетаний. Укрупненные формы фасада через элементы интерьера постепенно адаптируются к человеческому масштабу. Ряд вопросов намеренно оставлен открытым. Если на фасаде законченная композиция, то интерьер обещает быть многогранным. Финальная цель — яркий и неординарный проект, соответствующий первоначальному замыслу, заданному масштабу и правильным принципам.

Площадь дома 575,02 кв.м.

Выставка конкурсных проектов
ВЫСТАВКА КРАСИВЫЕ ДОМА - 2026

ФОТОГАЛЕРЕЯ
ЭКСПОЗИЦИИ
КОНКУРСНЫХ
ПРОЕКТОВ

КАК ЭТО БЫЛО
Выставка конкурсных проектов проходит дважды в год (Весна | Осень)

Отзывы

Можно использовать **жирный**, *курсив*, [ссылку](https://example.com), списки через - или 1.
Пока отзывов нет. Будьте первым.