Усадьба Жуковка
Особняк из клееного бруса в стародачном месте Подмосковья. Состоит из нескольких блоков. Техническая часть — навесы под машины, мастерская, котельная и вспомогательные помещения. К этой зоне примыкает теплая беседка с мангальной зоной. Следующий объем — общие помещения: гостиная, кухня, столовая. К ним примыкает зона релакса: бассейн, сауна, массажный кабинет комната отдыха и т.д.
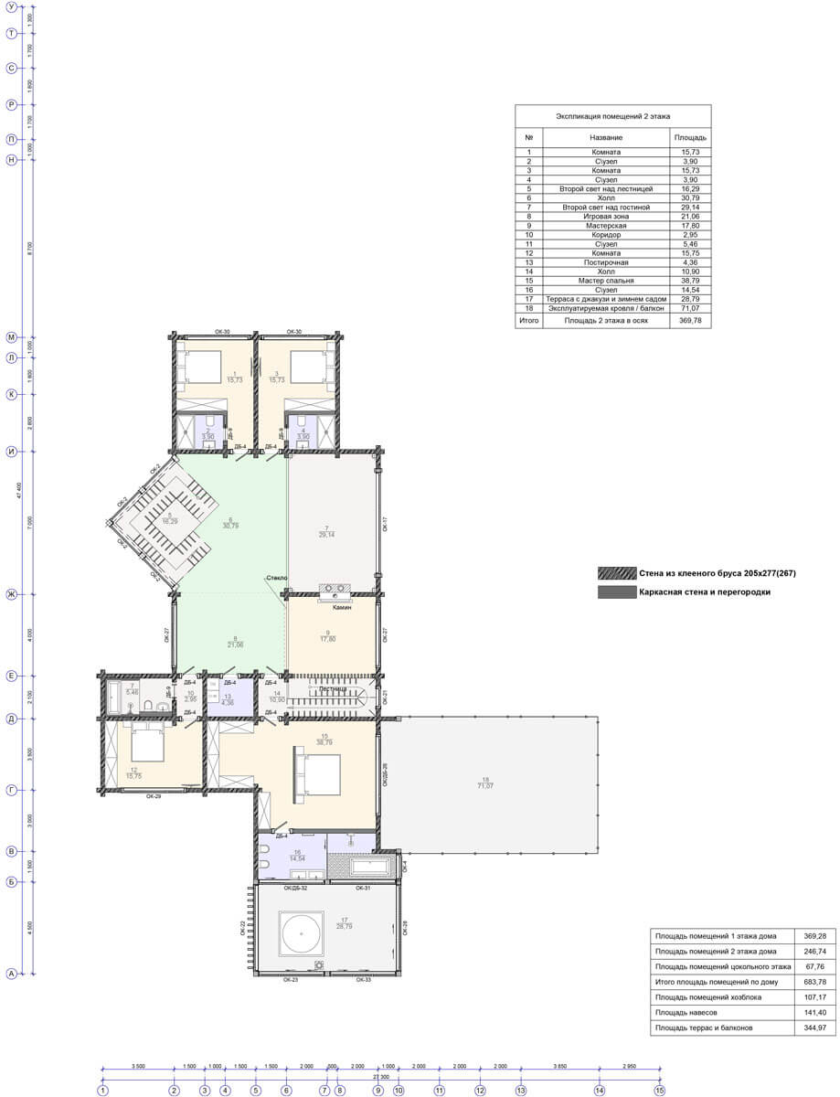
Второй этаж занимают два блока: приватный и детский. Приватный блок состоит из двух спален с большими гардеробными и с/у. Украшает блок — зимний сад с джакузи. Детская зона представлена 2-мя спальнями с отдельными с/у. Над гостиной запроектирован двусветный объем. Эффектно смотрится «сквозное» лестничное пространство.
Проект находится в стадии реализации.
Отзывы
Пока отзывов нет. Будьте первым.







