Уютное шато из дерева
Фото: Владимир Кузнецов
Проект реализован в деревне Шульгино Московской области.
При создании проекта мы вдохновлялись мечтами заказчика о небольшом старинном французском загородном доме, который было предложено выполнить в не очень традиционной трактовке – из дерева. В процессе работы эскизы объёмно-планировочных решений выполнялись вручную, а детали и элементы оттачивались уже на стадии BIM проектирования. В итоге мы получили некую стилизацию под французское шато с элементами нормандского стиля.
Дом ассиметричен и складывается из отдельных пазлов, имея рельефный многоуровневый силуэт. Но при этом имеет характерную для шато основную достаточно крутую 4-хскатную крышу со шпилями. По центру фасада, обращенному к въезду на участок, располагается парадный вход. По бокам эркер и отдельные криволинейные элементы кровли. На внутреннюю часть участка выходят огромные двухуровневые французские окна гостиной и терраса с перголой. Часть террасы имеет светопрозрачную кровлю, а часть открыта. Этот фасад так же имеет ассиметричные кровельные элементы. В конструкциях используются гнутоклееные конструкции, которые повторяются гнутыми конструкциями декора окон.
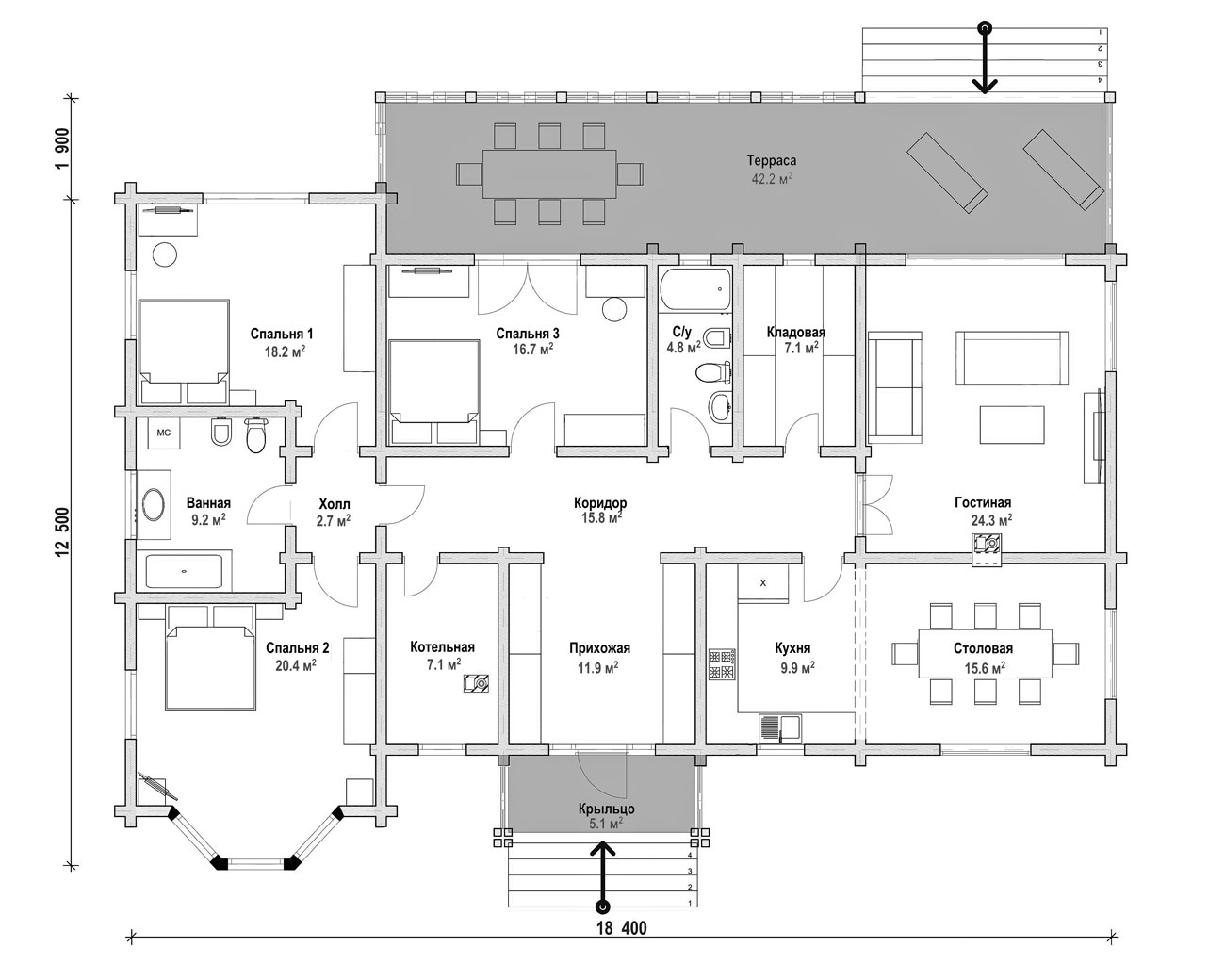
Планировка первого этажа дома имеет две отделенных друг от друга зоны. Спальную зону с хозяйской и детской спальней, разделенные санузлом. И «общественную» зону, куда входит гостиная, столовая/кухня, гостевая спальня, гостевой санузел, котельная и кладовая. Балочный деревянный потолок внутри помещений «фальшивый» и не повторяет форму крыши. Кухня и столовая разделены двусторонним камином, который можно наблюдать как из гостиной, так и из столовой. В доме есть просторные мансардные помещения – гостевой спальней, игровой, санузлом и чердаком, которые освещается с помощью мансардных окон.
На участке помимо основного дома также построены из дерева баня, хозблок и дровница.
Общая площадь дома 211 м², в т. ч терраса и крыльцо 47,3 м² Размеры – 18.4 х 14,4 м, включая террасу (в осях).












