В деревянном доме на Новой Риге
Идея жить в своем загородном доме круглогодично в семье заказчика родилась пару лет назад. Они долго думали, какой дом подошел бы их семье, с выбором все оказалось не так просто. «Архитектурных стилей и материалов домов сейчас очень много, и не так просто определиться сразу, что именно подходит нашей семье. Задача оказалось не из легких, но мы справились. Основные требования для нас были следующие: дом должен был быть светлым и просторным, с применением натуральных материалов, с летней террасой, с единым пространством кухни и гостиной, обязательно планировали спальню для родителей на первом этаже, от гаража в доме мы сразу отказались и главное — всей нашей семье нравятся деревянные дома, потому что в них уютно, особая энергетика, они экологичны», — говорит заказчик, инженер по образованию.
Они подобрали для себя подходящий вариант, купили готовый деревянный дом без внутренней отделки. Далее начали работу над проектом, в первую очередь захотели изменить внешний облик дома: подобрали другой цвет для фасада. Далее заказчики начали большую серьезную работу над интерьером с архитектурно-дизайнерским бюро. Задача стояла не простая, хотелось сделать легкий европейский стильный интерьер, чтобы уйти от эффекта деревянной избы.
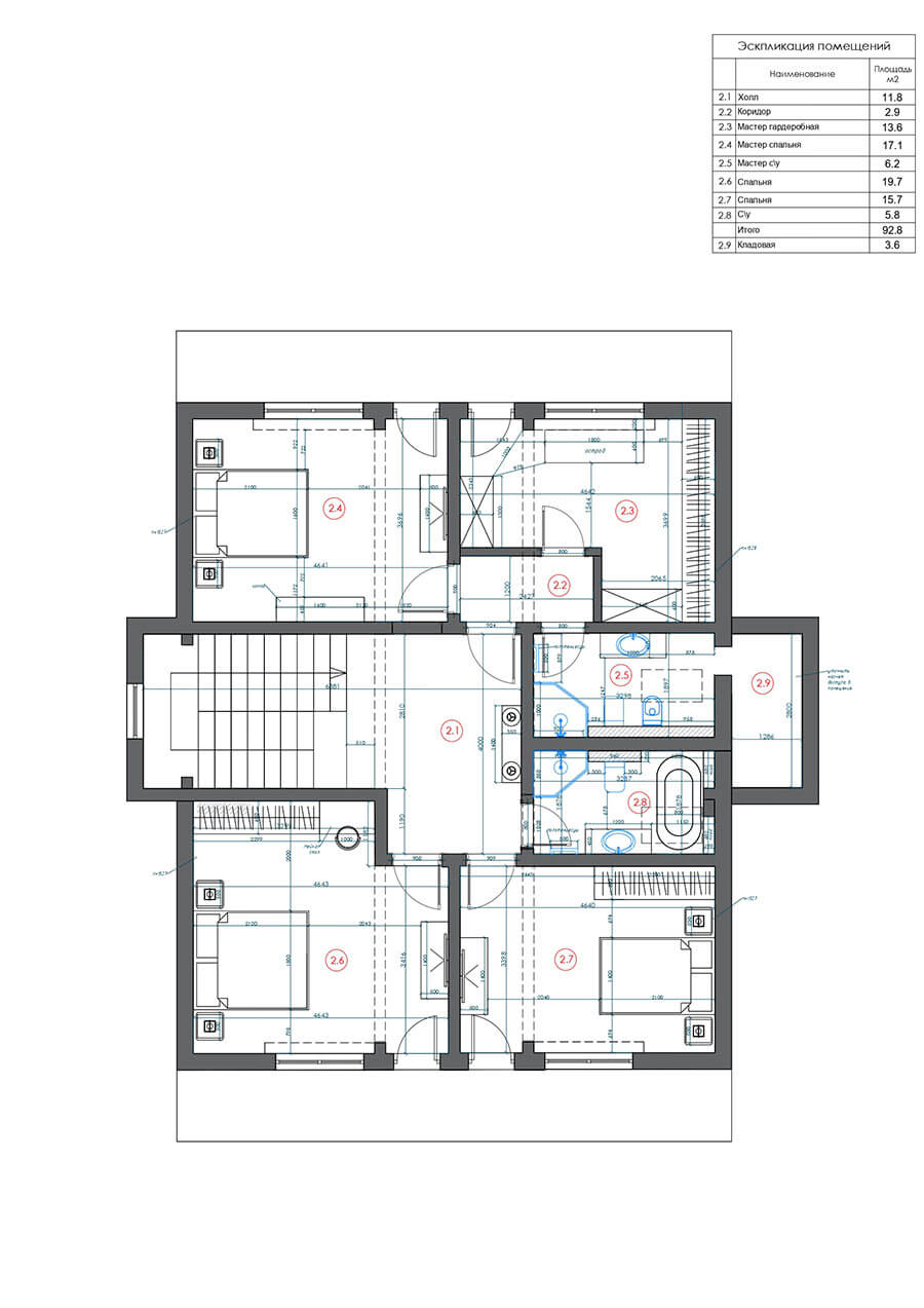
Архитектор со своей командой принялся за работу. В начале внесли изменения в планировку: на первом этаже увеличили санузел, предусмотрев в нем просторный удобный душ, так как спальня для родителей располагается на первом уровне. Далее внесли корректировки на втором этаже, по проекту было четыре спальни и два санузла, поэтому внесли изменения под конкретную семью: сделали с одной стороны мастер-блок, в него входила просторная спальня, санузел и гардеробная; с другой стороны сделали две светлые детские и санузел с ванной. Затем приступили к дизайну интерьера. Для замены деревянных стен заказчик предложил дизайнерам обои, на что дизайнеры ответили «ни в коем случае», и попросили набраться терпения в ожидании первых визуализаций интерьера дома. Через неделю супругам пришли первые образы, они были приятно удивлены от выполненной работе, студия справилось с поставленными задачами на твердую пятерку. Интерьер получился очень стильным: половина стен в доме были деревянными, а вторая половина выполнена из гипсакартона и покрашена в нежный кофейный цвет, были придуманы разные интересные решения со светом, в спальнях были везде разные люстры, во всем доме применены разные бра, в санузлах полностью исключили дерево, были установлены высокие двери цвета капучино.












