Множественный выбор
Выбрать номинацию

В ритме города — в согласии с природой

Фотограф объекта: Игнатенко Светлана

Квартира находится в ЖК «Резиденции архитекторов», вид из которой открывается на красивую набережную.

Заказчики - молодая семья с ребенком. Активные, современные, они очень органично сочетают в себе любовь к природе и при этом отлично себя ощущают в городской среде. При работе над проектом главной задачей было найти «золотую середину», уравновесить жизнь в большом городе с ощущением природной натуральности.

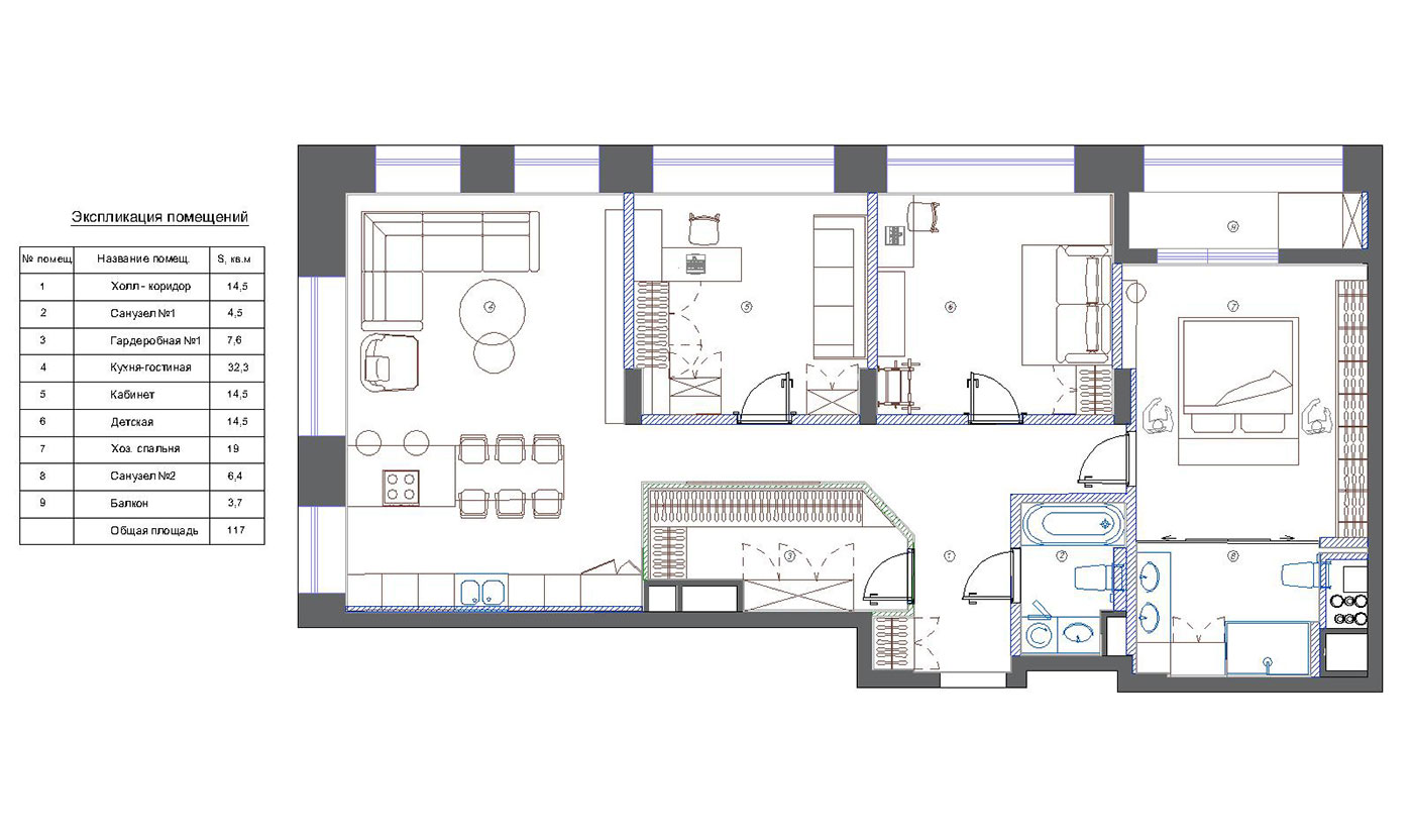
Общая площадь квартиры 117 кв. м., здесь расположились: холл-коридор, вместительная гардеробная, гостевой санузел, просторная кухня-гостиная, детская, кабинет, мастер-спальня с санузлом и уединенный балкон. Интерьер получился уютным, близким к природе, но при этом современным и технологичным. Для оформления акцентных зон пространства были выбраны натуральные оттенки. Многочисленные сценарии освещения позволили раскрыть всю красоту цветового решения интерьера.

Сердце этого проекта - очень уютная кухня-гостиная, в которой максимально полезно хотелось использовать площадь помещения. В небольшом пространстве разместилось несколько функциональных зон: сама кухня с кухонным островом, полноценная обеденная зона и зона отдыха. Пространство получилось легкое, наполненое воздухом и цветом.

Если гостиная – это любимое место каждого члена семьи заказчика, то душа взрослой ее половины поселилась в мастер-спальне. Спальня в таком ключе – мечта заказчиков. Максимально открытое пространство: со стеклянным шкафом-витриной, выходом на уютный балкон с живописным видом и объединенным санузлом. Удобство использования уборной комнаты было решено установкой стеклянной перегородки и шторы на электроприводе. Цветовая гамма в спальню выбрана спокойная, но в тоже время с красивыми плотными, густыми оттенками, которые придают особую атмосферу интимности помещению.

Детская в данном проекте также является важным пространством для активного и растущего ребенка. Учитывая небольшую площадь детской комнаты удалось максимально эффективно ее использовать, расположив в ней: рабочую зону, зону отдыха и место для спорта. С помощью цвета получилось очень здорово организовать пространство и при этом не перезаполнить его предметами.

Также в квартире имеется кабинет. Это индивидуальное пространство заказчиков, где они могут уединиться, спокойно поработать и побыть со своими мыслями наедине. В кабинете предусмотрено место не только для работы, но и для встреч и переговоров.

В целом квартира получилась очень многоплановой, с разными световыми сценариями и что самое главное, отвечающая потребностям заказчиков.

Выставка конкурсных проектов
ВЫСТАВКА КРАСИВЫЕ ДОМА - 2026

ФОТОГАЛЕРЕЯ
ЭКСПОЗИЦИИ
КОНКУРСНЫХ
ПРОЕКТОВ

КАК ЭТО БЫЛО
Выставка конкурсных проектов проходит дважды в год (Весна | Осень)

Отзывы

Можно использовать **жирный**, *курсив*, [ссылку](https://example.com), списки через - или 1.
Пока отзывов нет. Будьте первым.