Vila Istra
Готовое решение для частных клиентов и девелоперов, которое можно реализовать на любом земельном участке достаточной площади. Первый проект, находящийся на стадии строительства, расположен на берегу Истринского водохранилища.
При строительстве объекта используется технология вертикального бруса Naturi с толщиной стен 400 мм. Выбранный материал обеспечивают дополнительную энергоэффективность дома, снижает эксплуатационные затраты для его владельца, а также отвечает самым высоким экологическим требованиям.
Вертикальное расположение бруса, панорамное остекление, плоская кровля — элементы современной архитектуры, характерные для Европы, Америки и Канады. Благодаря Г-образной форме дом можно расположить на участке, ориентируясь на видовые точки и стороны света.
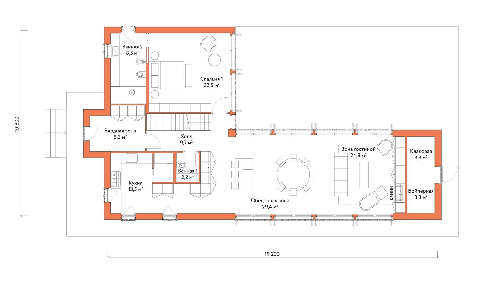
Планировка предполагает размещение общественных помещений — кухни, гостиной — и комнаты для гостей на первом этаже и спален — на втором. Интерьер, современный и эклектичный, — приятный микс модных тенденций и классических решений.













