VILLA 35
Индивидуальный жилой дом расположен в городе Сочи. Земельный участок находится на первой береговой линии, перепад рельефа составляет около 15 метров. Формообразование дома определено геометрией земельного участка, рельефом местности и видовыми характеристиками участка.
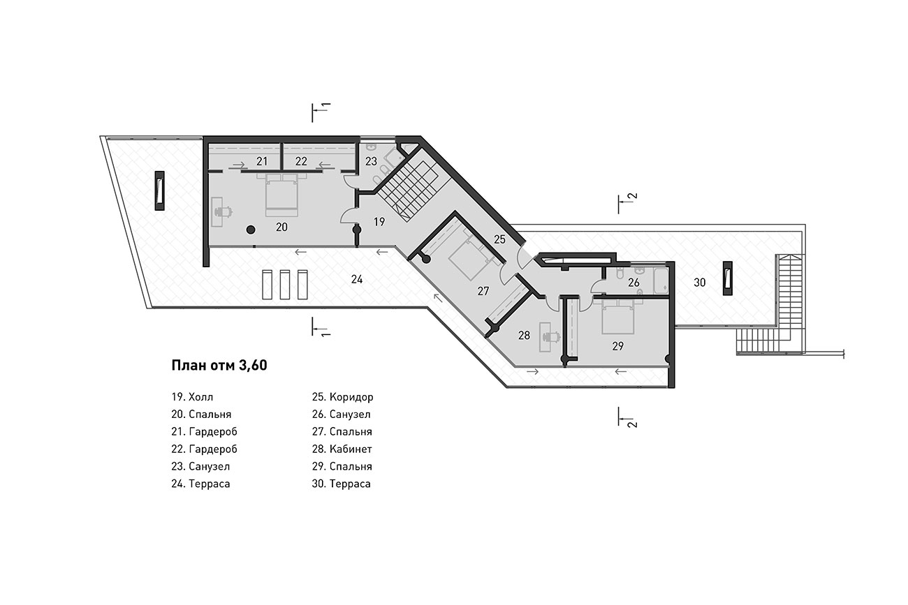
На первом этаже дома расположены гостиная, кухня-столовая, спа, технические и подсобные помещения. На втором этаже — спальни с выходами на террасы. Конфигурация первого и второго этажа выполнена со смещением в плане, благодаря чему удалось создать навес, используемый как укрытие для террасы при гостиной и спа. Помимо этого на участке запроектированы бассейн, летняя кухня, парковка на три автомобиля и каминная зона. Все элементы благоустройства выполнены в едином стиле и подчинены главной идее проекта — обеспечить максимальный вид на море.










