Множественный выбор
Выбрать номинацию

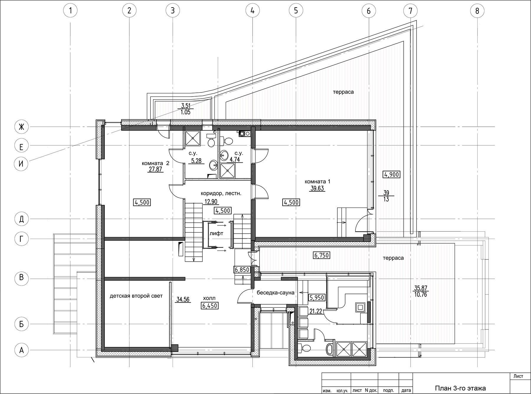
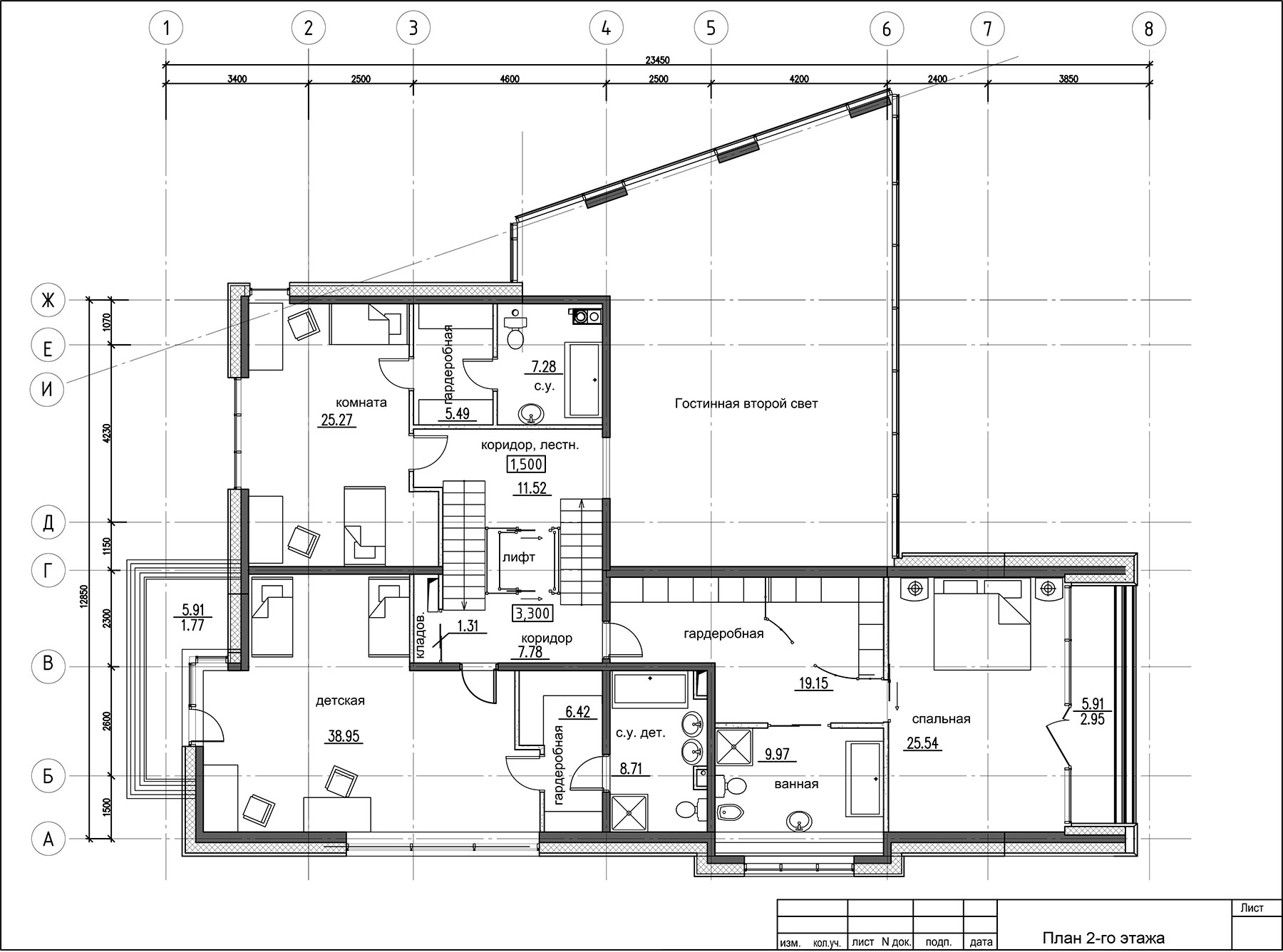
Вилла 925

Частная вилла расположена на берегу реки Москвы в Серебряном бору.

Одной из задач при проектировании было создание дома большой площади на участке скромных размеров трапециевидной формы. При этом заказчики высказали пожелание сохранить имеющиеся на территории деревья. Они также считали, что дом должен соответствовать высотному регламенту застройки.

В результате авторам проекта удалось, сохранив визуальную изолированность дома от соседних участков, создать комфортные условия для проживания. Также была решена задача формирования основной рекреационной зоны участка, открывающейся, как и все основные помещения (гостиная, кухня-столовая, спальни и т.д.), на водную акваторию.

Расположение дома и стесненные условия застройки определили концепцию вертикального зонирования помещений виллы. Все они группируются вокруг лестницы со стеклянным лифтом, завершающимися световым фонарем. На первом этаже расположены гостиная, кухня-столовая, кабинет и гараж. При этом создана визуальная планировочная ось, соединяющая въезд на участок с рекреационной зоной у воды. На втором этаже находятся спальни и детские, а на третьем — камерные помещения спа-зоны с видовыми террасами. Подвальный этаж предполагает размещение сезонных гардеробных, домашнего кинотеатра и комнат персонала с изолированным входом.

Стилистически образ дома сформирован близостью водной акватории, он современно обыгрывает корабельно-яхтенную тему. Авторы проекта максимально объединили помещения дома с природной средой, использовав при строительстве современные, долговечные материалы: пеностекло, патинированную медь, натуральный камень, керамические фасады с отделкой панелями, изготовленными по авторскому эскизу.

Основные показатели:
Общая площадь – 830 м²
Этажность – 3 этажа
Подземная часть – с подвалом

Выставка конкурсных проектов
ВЫСТАВКА КРАСИВЫЕ ДОМА - 2026

ФОТОГАЛЕРЕЯ
ЭКСПОЗИЦИИ
КОНКУРСНЫХ
ПРОЕКТОВ

КАК ЭТО БЫЛО
Выставка конкурсных проектов проходит дважды в год (Весна | Осень)

Отзывы

Можно использовать **жирный**, *курсив*, [ссылку](https://example.com), списки через - или 1.
Пока отзывов нет. Будьте первым.