Множественный выбор
Выбрать номинацию

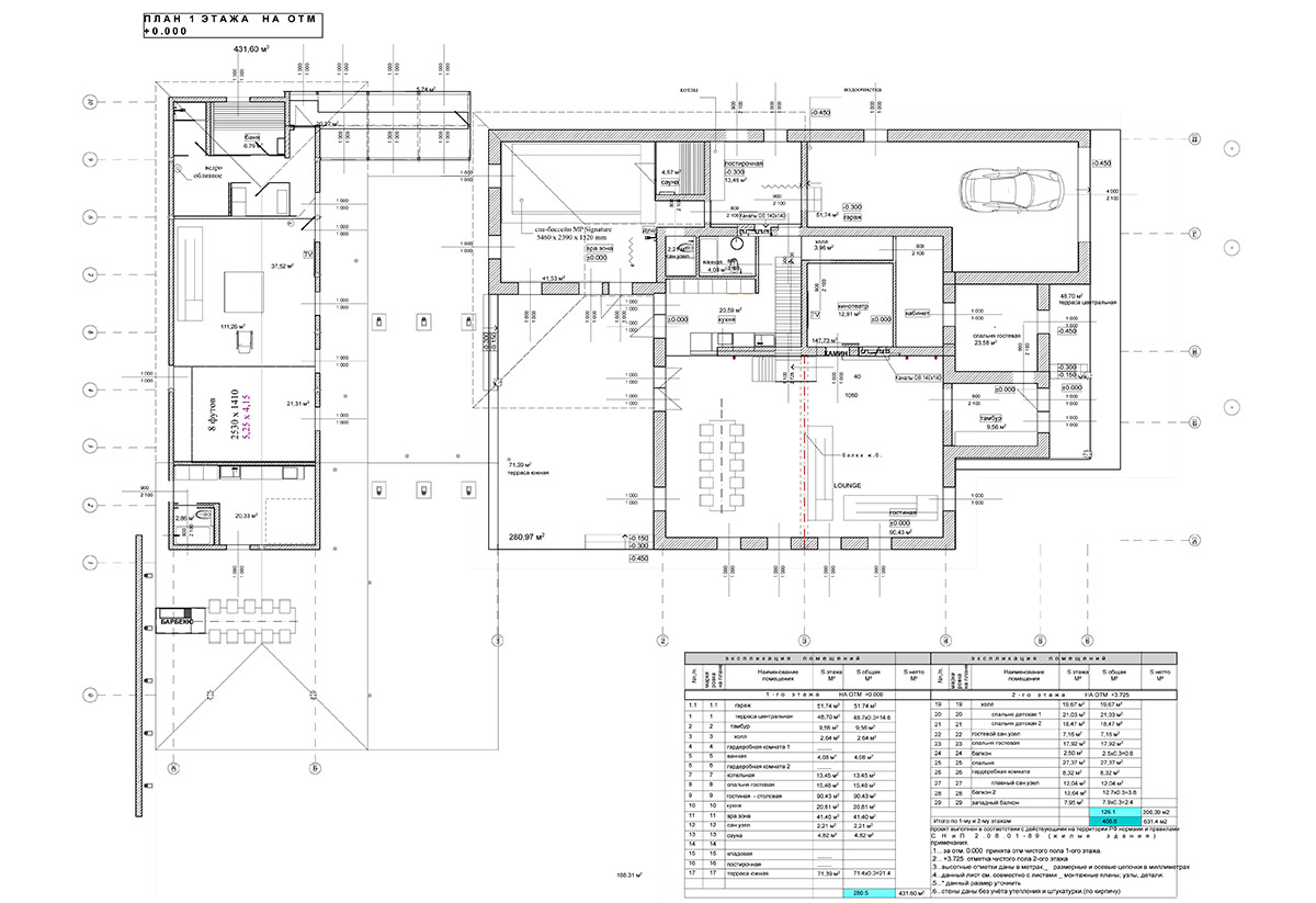
Вилла AL_HoUSe

Двухэтажная вилла площадью 780 м² находится на территории Москвы. Она построена из монолита с заполнением кирпичом и облицована доломитом серым «лапша».

Планировка виллы классическая линейная. Двор — каре. Гостевой дом с патио расположен через гравийную реку.

На первом этаже находятся лаунж-зона, кухня-столовая, домашний кинотеатр, гостевая спальня, хозблок, гараж, спа-зона с сауной и бассейном. Центральный элемент дома — лестница, ведущая на второй этаж. Поднимаясь, можно видеть кухню и кабинет второго этажа. Стена лестницы облицована мрамором «Эмперадор дарк».

В гостиной установлен камин с двойным остеклением, он также работает в кинозале.

На втором этаже расположены три спальни, кабинет и санузел. Главная спальня снабжена отдельной гардеробной и ванной комнатой за стеклянной перегородкой.

Планировка линейная, большие помещения дискретны и перетекают друг в друга. Перегородки выполнены из каленого стекла с возможностью изоляции шторами. Алюминиевые направляющие позволяют легко скользить текстилю.

Освещение продумано таким образом, что свет разбит по периметру, на колоннах и стенах. Управление светом осуществляется из разных точек квартиры. Все помещения оснащены датчиками движения и ночниками, что необходимо для комфортной жизни.

Выставка конкурсных проектов
ВЫСТАВКА КРАСИВЫЕ ДОМА - 2026

ФОТОГАЛЕРЕЯ
ЭКСПОЗИЦИИ
КОНКУРСНЫХ
ПРОЕКТОВ

КАК ЭТО БЫЛО
Выставка конкурсных проектов проходит дважды в год (Весна | Осень)

Отзывы

Можно использовать **жирный**, *курсив*, [ссылку](https://example.com), списки через - или 1.
Пока отзывов нет. Будьте первым.