Вилла для жизни
Особеннось данной виллы заключается в ее внутреннем объеме. В центре расположен внутренний двор с цветущим садом, вокруг которого развивается вся объемно-пространственная структура.
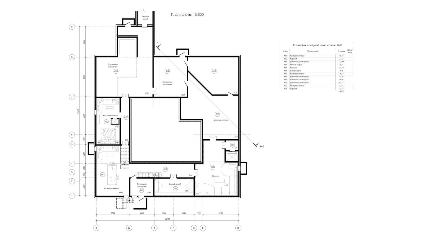
Для прислуги есть отдельный вход, также предусмотрен запасный тайный выход в цокольном этаже.
На первом этаже расположены гардеробная с санузлом, гостиная, обеденная зона, галерея (либо зал для коллекционирования), спа-зона с сауной, камином, джакузи и с бассейном с выплывом на улицу, тренажерный зал и гараж.
Террасы устроены около обеденной зоны и рядом с бассейном.
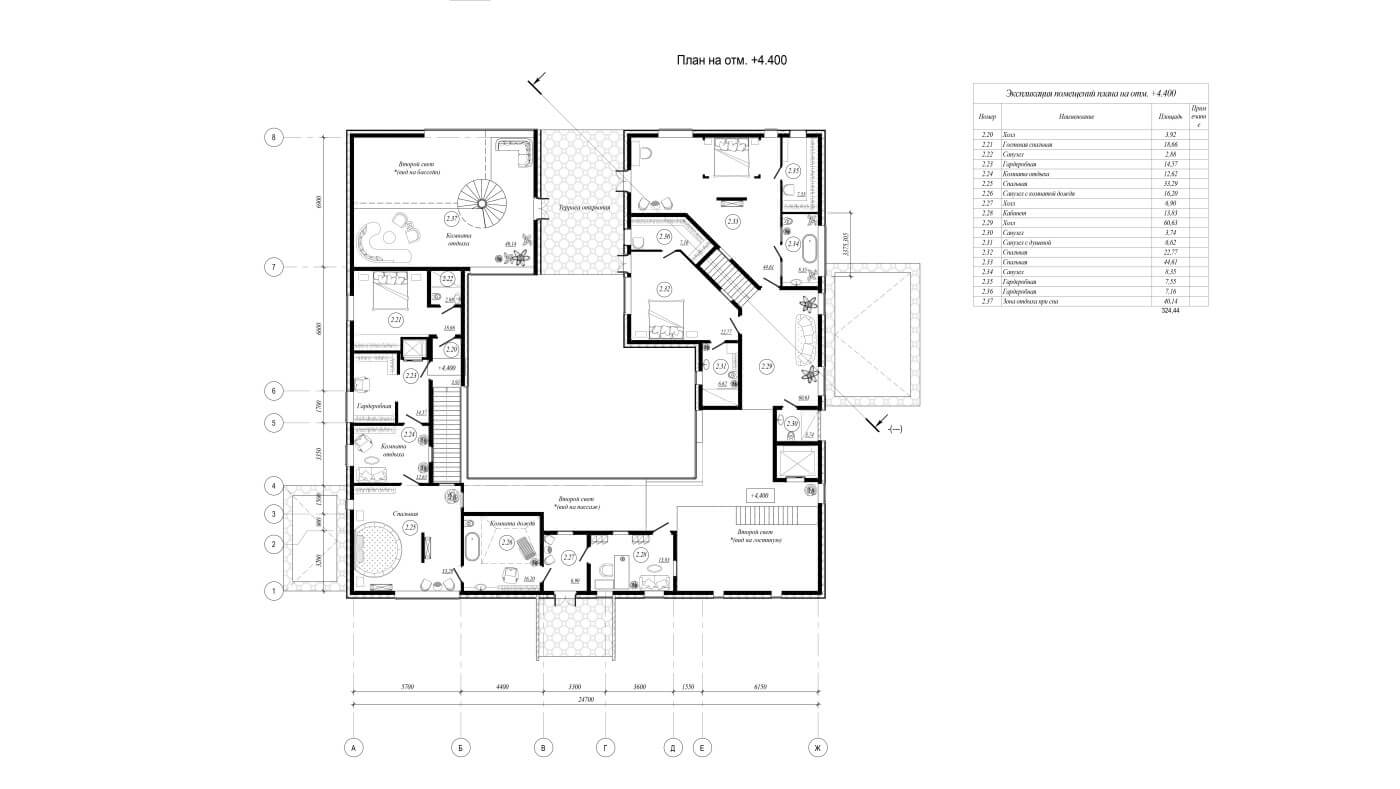
На втором этаже предусмотенно 4 спальни: гостевая, главная и др. Во всех спальнях санузлы с гардеробными. В главной спальне большая гардеробная, комната отдыха, зона сна, а также санузел, в котором располагается комната дождя (при включении специального режима со всего потолка идет дождь, «гигантская душевая»). Из санузла через тамбур можно выйти на балкон. Главная спальня связана с кабинетом. В спальне предусмотрен скрытый лифт, который спускается в цокольный этаж в изолированную комнату отдыха.
На втором этаже — комната отдыха при бассейне, из которой можно попасть на общую террасу.
В цокольном этаже находятся винный погреб, бильярдная, отдельный кинозал, комнаты отдыха, технические помещения.












