Вилла Еланчик
Концептуальный и динамичный дом был навеян деятельностью клиента, связанной с промышленным оборудованием и технологиями. Строгость, лёгкость, прозрачность пространств удалось объединить в цельный образ благодаря использованию современного деревянного фахверка и составного объёмно-планировочного решения.
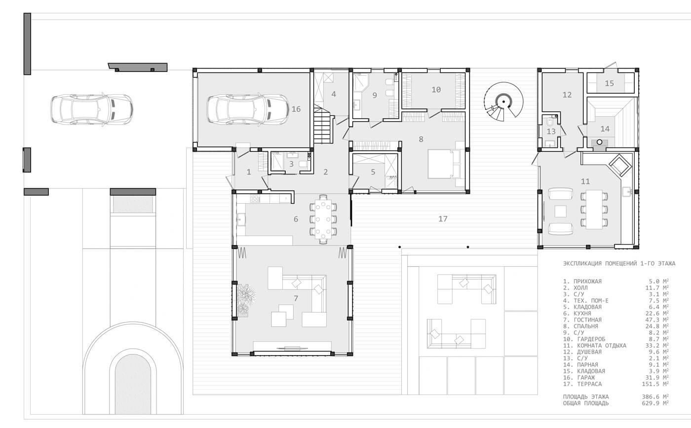
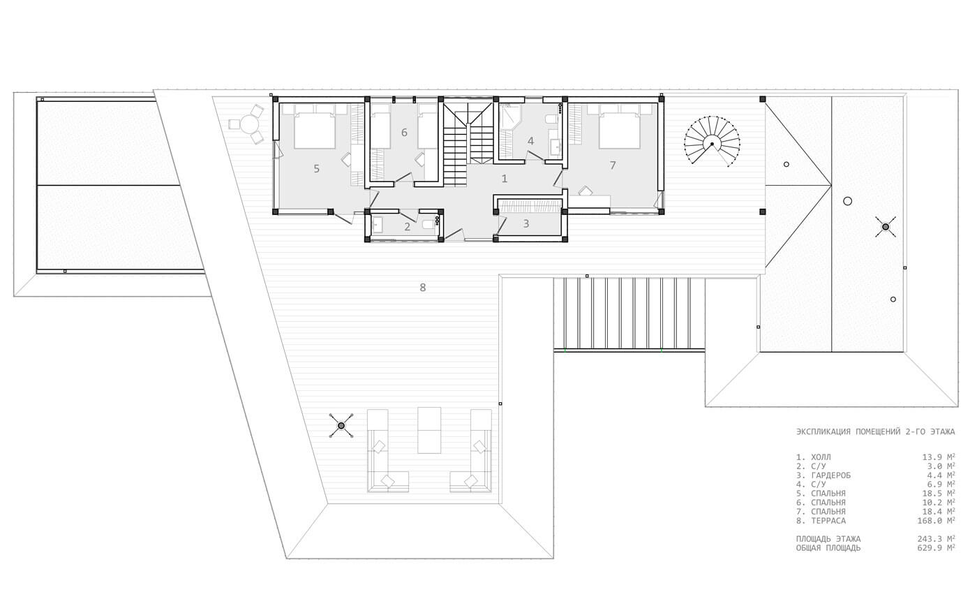
Дом представляет собой комплекс зданий и пространствT-образной композиции, объединенных крышами и террасами. Состоит комплекс из трёх частей: навес для автомобилей, совмещённый с въездной группой, основной жилой блок и банный комплекс. На первом этаже жилого блока расположилась: просторная гостиная зона со сквозным видом на озеро и внутренний двор с патио; мастер-спальня с собственным гардеробом, санузлом; другие подсобные помещения. На втором этаже находятся три спальни, вспомогательные помещения и доступ к просторной террасе с панорамным видом на всю окружающую территорию. Доступ к террасе также может быть осуществлён с первого уровня с помощью открытой винтовой лестницы.
Открытые стойки каркаса фахверка уравновешиваются лезвиевидными карнизами крыш, отделанными фальцевой кровлей, дающими динамичный эффект «полёта» всему комплексу. Отделка стен между балками и стойками каркаса фахверка предусмотрена из фасадной деревянной рейки комбинированного сечения.











