Вилла Гармония
Индивидуальный жилой дом находится в городе Сочи. Территория проектирования обусловлена перепадом высот 11 метров и ориентацией на юго-западную сторону света.
Участок расположен на склоне горы с панорамным видом на Чёрное море в окружении лесного массива, на высоте 218,35 метра над уровнем моря. Данные внешние факторы определили выбор стиля минимализм, панорамного остекления, стирающего грань между интерьером и природой. Все жилые помещения ориентированы на юг, юго-запад. С северо-востока находится въезд на участок, что обусловило местоположение входной группы и всех технических помещений. Также с северо-восточной стороны участка обустроен паркинг с перголой на 4 машино-места.
Рельеф участка имеет достаточно сильный уклон с задней стороны дома, поэтому было принято решение заглубить первый этаж в грунт с северо-востока. На территории проведено террасирование в три уровня с перепадом высот в 4 и 2 м. На верхнем уровне расположены входная группа и паркинг. Средний уровень соответствует отметке пола нижнего этажа, там обустроена зона придомовой террасы с бассейном и клумбами. Нижняя терраса представляет собой озелененную площадку с беседкой.
Это позволило снизить нагрузку на нижнюю подпорную стену, разделить входную группу, зону отдыха, зону сада и гармонично вписать благоустройство участка в природный ландшафт местности.
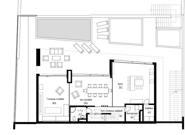
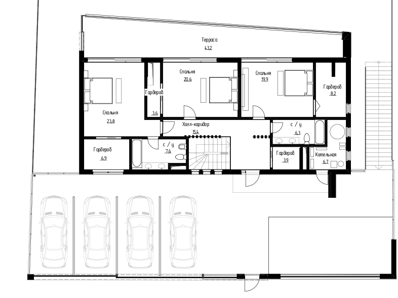
Эргономика внутреннего пространства всецело подчинена функциональности. На первом этаже размещены просторная кухня-гостиная, спа-зона, кладовые и технические помещения. На втором этаже — спальни, гардеробные с санузлами.









