VILLA L*
VILLA L на рельефе — модернизм и минимализм, ее архитектура легкая и монументальная одновременно.
Внутренний двор с зеркалом воды и ниспадающими лестницами расположен ниже уровня участка.
Выход на реку выполнен с интегрированной летницей-площадкой и зоной отдыха, все элементы ландшафта, ступени лестницы, пол облицованы керамогранитом Italon.
Дно реки и площадки под зеркалом воды на земле в щебне из темного сланца почти совпадают по оттенку и текстуре с Italon Contempora Carbon. В комплексе возникает целостное восприятие интерьеров и архитектуры.
Зенитный фонарь занимает 85% площади кровли. Прозрачный материал между деревянными клееными балками беспрепятственно пропускает дневной свет во внутреннее пространство дома. Блокирование солнечных лучей обеспечат шторы-плиссе «Блэкаут».
VILLA L остеклена легкими рамами sky-frame по периметру, а ограждение по границе участка глухое — из керамогранита Italon.
Более 200 м2 — с эффектной линейной подсветкой снизу, дающей теплое уютное свечение.
Западный фасад здания консольно вынесен над рекой и абсолютно глухой, он определяет особенности видовых точек с участка. Остекленный южный фасад дает возможность видеть лучшие ракурсы ландшафта и устроить максимально эффективную инсоляцию интерьеров.
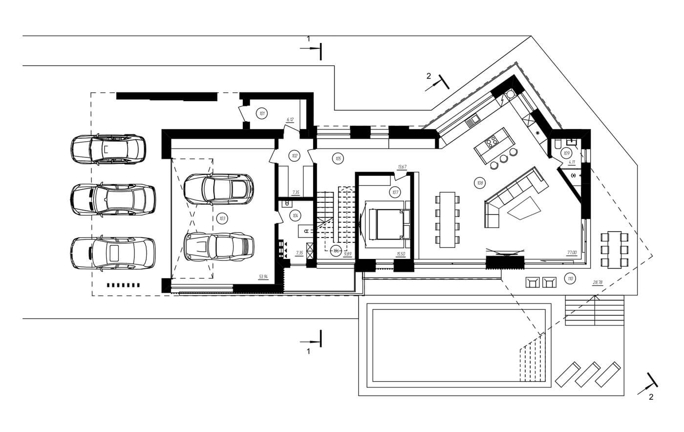
Парковка и въездная группа облицованы толстым керамогранитом Italon Contempora Карбон, в который врезаны швы щебня и зеркало воды 100 м2.
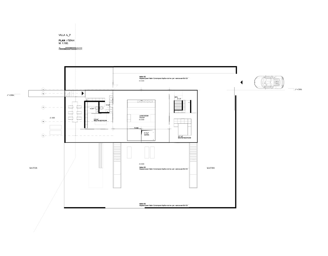
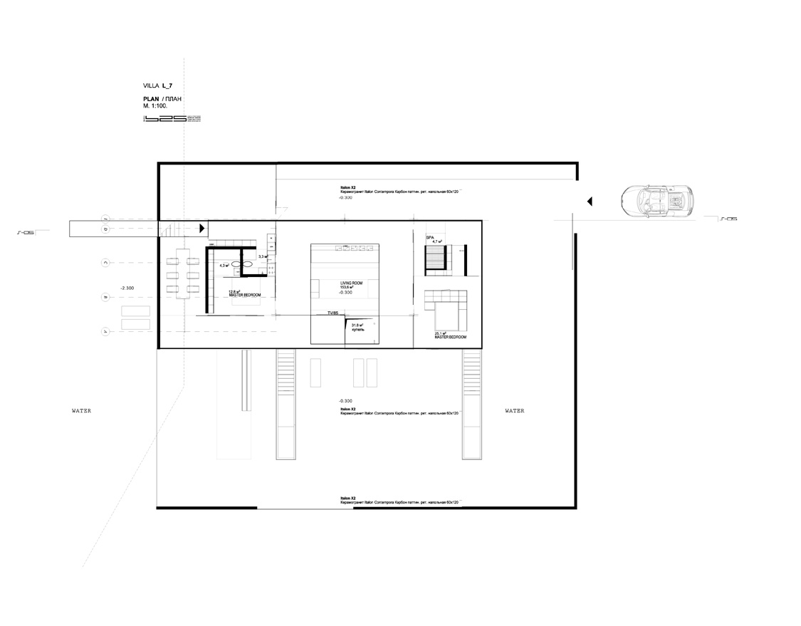
Площадь дома 150 м2. В помещении две спальни, два санузла, спа-зона, гостиная-столовая-кухня, терраса.
Система Sky-Frame — легкие и элегантные конструкции, при помощи которых удается воплотить в жизнь идею прозрачности. Sky-Frame как будто растворяется в воздухе, освобождая здание от окон. Окна с шагом 3000 мм, высота тоже 3000 мм.
За потолком расположены рулонные шторы (выезжают автоматически, по KNХ), а также система вентиляции и кондиционирования.






























