Villa L
Расположенная на живописном участке, эта двухэтажная вилла аккуратно интегрирована в природный ландшафт, открывая изысканные виды на море из каждого помещения. Архитектурный замысел подчинён гармонии с природой: панорамное остекление, отражающее морскую гладь, продуманные объёмы и игра света создают ощущение непрерывного диалога интерьера с окружающим пространством.
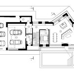
Подъезд к вилле, пролегающий со стороны гор, задаёт тон первому впечатлению посетителей. Въездная группа встречает гостей выразительной консолью второго этажа — кажущейся невесомой, она эффектно парит над парковочной зоной, укрывая автомобили под своим козырьком. В этом акцентирующем выступе на 2 этаже расположены детские спальни, сочетающие приватность с умиротворяющим видом из окон.
Сердце дома — просторная кухня-гостиная, интерьер которой благодаря раздвижной витражной системе плавно перетекает в уличное пространство к террасе с открытым бассейном. Динамику фасаду придаёт развёрнутый консольный объем мастер-спальни на втором этаже: этот приём не только придает вилле характер и узнаваемость, но и создаёт естественную защиту от палящего южного солнца в гостиной, бережно сохраняя при этом прекрасные виды на море.
В основе философии проекта лежат принципы контекстуального дизайна: здание не просто занимает участок, а взаимодействует с ним. Этот проект отражает вдумчивую взаимосвязь архитектуры и природного окружения: монолитные грубые формы контрастируют с легкими стеклянными фасадами, а протяжённые контуры террас и парапетов повторяют линию морского горизонта. Здесь нет случайных решений — даже консоль на въезде, кажущаяся смелым художественным жестом, является тщательно продуманным элементом, создавая защищённую от осадков парковочную зону, а предварительно просчитанная ориентация объёмов учитывает движение солнца.
Это не просто жилое пространство, а материализация нашей философии, направленная на раскрытие характера и образа жизни клиента, где архитектура становится продолжением личности заказчика.
Площадь объекта: 470 м²
Этажность: 2
Год проектирования: 2023





























