Множественный выбор
Выбрать номинацию

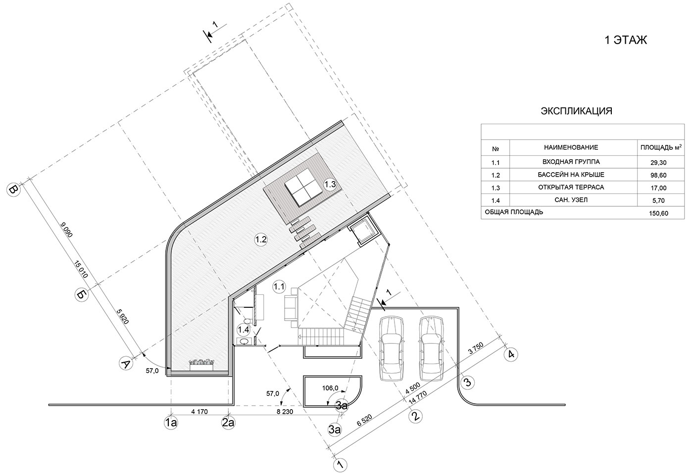
Вилла ЛОТОС

Вилла «ЛОТОС» является одной из нескольких жилых единиц поселка на острове Самуи в Таиланде. Здание располагается в первой береговой линии на ярко выраженном рельефе.

Концепция проекта взята из природных форм. Неправильные причудливые формы лежат в основе архитектуры виллы. Здание вписано в природный ландшафт. Вода на крыше основного объема и водопад усиливают ощущение слияния архитектуры и природы. Стеклянная конструкция парадного входа - символ распускания цветка. Стеклянная конструкция позволяет «улавливать» лучи солнца.

Конструкции здания из железобетона. В отделке фасадов используется местный природный камень.

Открытая галерея этажа со спальными комнатами прикрыта горизонтальными жалюзи. Конструкция жалюзи предусматривает возможность смещения, что позволяет полностью открыть вид на море.

Выставка конкурсных проектов
ВЫСТАВКА КРАСИВЫЕ ДОМА - 2026

ФОТОГАЛЕРЕЯ
ЭКСПОЗИЦИИ
КОНКУРСНЫХ
ПРОЕКТОВ

КАК ЭТО БЫЛО
Выставка конкурсных проектов проходит дважды в год (Весна | Осень)

Отзывы

Можно использовать **жирный**, *курсив*, [ссылку](https://example.com), списки через - или 1.
Пока отзывов нет. Будьте первым.