Множественный выбор
Выбрать номинацию

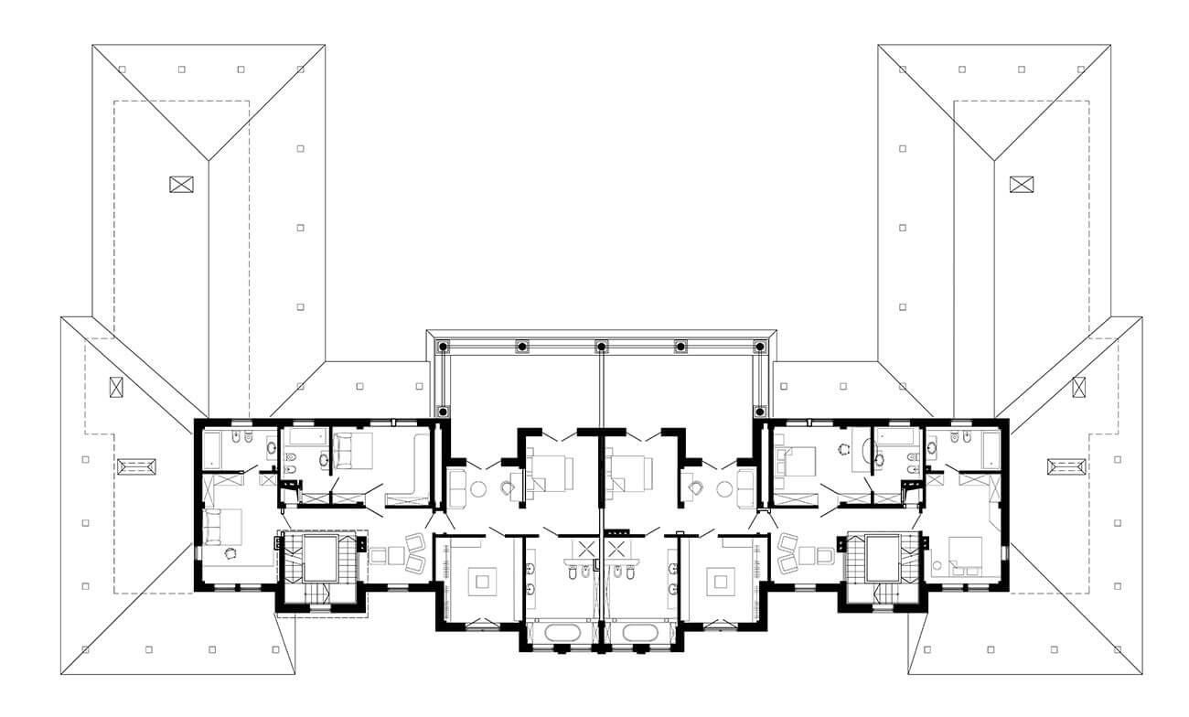
Villa Marina

Участок, на котором находится этот дом, с полным на то основанием можно назвать уникальным — на высоком берегу Черного моря, в окружении колоссальной массы зелени, с потрясающими видами на морскую гладь, чистейшим морским воздухом. Нашей задачей было запроектировать дом на две семьи — для двух родных братьев. Причем предусмотреть как собственные пространства для каждой из семей, так и некое общее — на случай крупных общесемейных мероприятий. Тема каре подошла как нельзя лучше, а южное солнце настояло на концепции классического приморского итальянского дома — с традиционной башенкой, большими свесами кровель, черепичной крышей, отделкой травертином и элементами декора из архикамня, картушами и барельефами на фасадах...

Особенностью данного проекта является его географическое положение — дом находится в условиях сейсмики и довольно сложных грунтов. Это повлияло на разработку конструктивных решений: фундаменты и каркас здания — из монолитного железобетона.

Площадь участка: 1.5 га
Общая площадь дома 1800 кв.м
Переменная этажность: 1—3 этажа
Дом предназначен для проживания двух семей с детьми.

Выставка конкурсных проектов
ВЫСТАВКА КРАСИВЫЕ ДОМА - 2026

ФОТОГАЛЕРЕЯ
ЭКСПОЗИЦИИ
КОНКУРСНЫХ
ПРОЕКТОВ

КАК ЭТО БЫЛО
Выставка конкурсных проектов проходит дважды в год (Весна | Осень)

Отзывы

Можно использовать **жирный**, *курсив*, [ссылку](https://example.com), списки через - или 1.
Пока отзывов нет. Будьте первым.