VILLA RV
Материалы: ж.б., металл, деревянные клееные панели ФК 12 — 6 мм, пропитанные лаком с оттенком под канадский кедр, благородный светло-розовый, суконно-матовый оттенок, низкоэмиссионные стеклопакеты, итальянское черное каленое стекло 12 мм. Rockwool 150–200 мм.
Технологии
Технология тисэ+, каркасная промышленная технология, S=180 кв. м.
Villa по каркасной технологии, клееные деревянные панели, стекло — это другой, следующий уровень технологии и комфорта для загородной жизни. Возможно, качественно выполненные, простые формы с панорамным остеклением максимально органичны и более приемлемы, когда речь идет о единении с природой.
Проект полностью интегрирован в скалу.
Вилла — дом бизнес-класса, промышленные методы проектирования и строительства применены для частного жилья, размеры кратны клееным панелям по ГОСТу, это позволит реализовать проект под ключ в срок менее чем 9 месяцев.
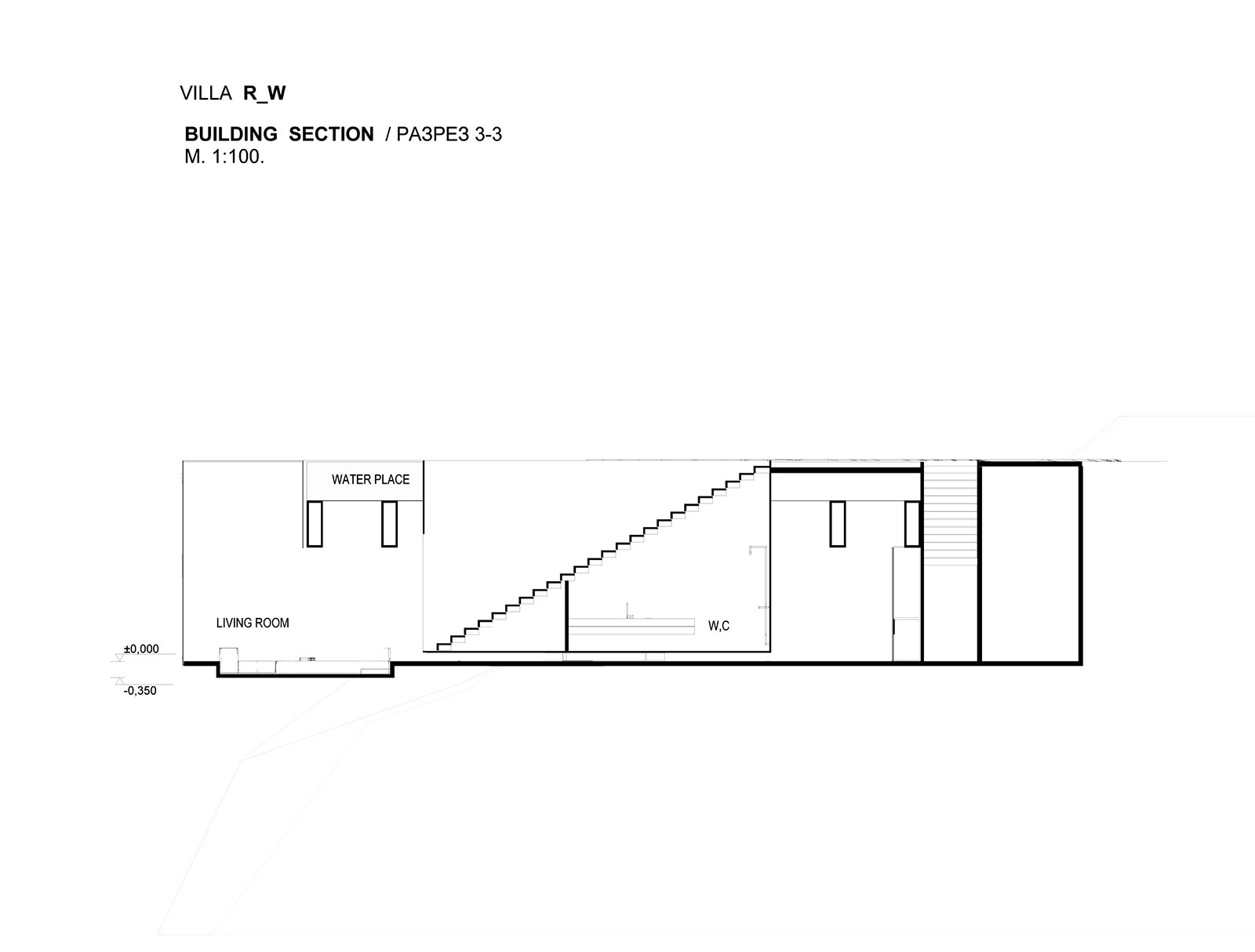
Цели — вписать, интегрировать жилье в ландшафт, сделать его максимально невидимым. Стилистика 30-40-х годов прошлого века взята за основу при проектировании.
Основная составляющая — ориентирование дома с учетом инсоляции и красной линии участка. На нулевом уровне бассейн 200—1100 мм с прозрачным основанием по балкам, Из бассейна можно спуститься в гостиную.
В доме линейная планировка, в центре гостиная и кухня, по двум сторонам спальня, за сдвижными перегородками, можно сдвинуть стены и организовать еще одну спальню. Но аскетичность и минимализм по духу инвесторов не предполагают такую возможность.
Санузел под парящей лестницей к бассейну.
Техническое помещение, модульность позволит увеличивать или уменьшать размеры помещений без потери в конструкции и архитектуре, добавлять дополнительные зоны, пристраивать новые комнаты.
Год завершения проекта: 2017
Страна: Россия













