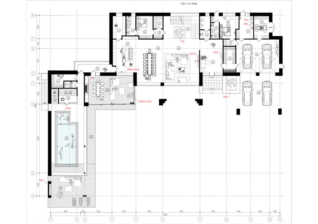
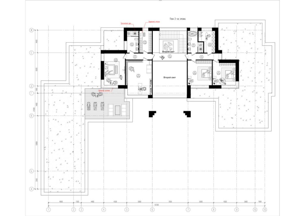
Вилла Рязань
Проект выполнен в духе органической архитектуры. Благодаря панорамному остеклению границы стираются и окружающий ландшафт перетекает в интерьер, становясь его частью. Дом наполнен светом и воздухом и гармонично вписывается в красивую природу пригорода Рязани.
В доме организованы как общественные зоны для приема гостей, так и частные приватные пространства хозяев.
Динамичные линии крыши и стен рождают игру света и тени, меняющуюся в течении дня и времени года.
Проект предполагает использование натуральных материалов: натурального камня, дерева, кирпича, керамогранита.
Отзывы
Пока отзывов нет. Будьте первым.























