Множественный выбор
Выбрать номинацию

Винодел

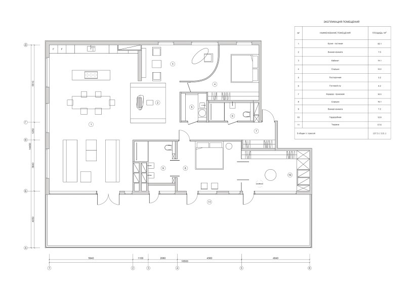
Главная задача при проектировании интерьера — создание современного, четко структурированного жилого пространства.

Винная комната, выполненная из стекла, представляет собой эмоциональный стержень общей композиции пространства. Несущая колонна в небольшом помещении обрамлена двуликой каменной скульптурой, просматривающейся через прозрачные перегородки.

В качестве дегустационного столика выбран двутавр, подобный алтарю, который усиливает контраст материалов — стекла и металла. Открытое пространство кухни с «островом», столовой и диванной группой служит зоной отдыха.

Гардеробная, спальня и ванная комната образуют блок приватных помещений. Рисунок террасы с подсветкой повторяет ритм окон фасада.

На площади 157 м² взаимодействуют архитектура, материалы, цветовая палитра и предметы мебели.

Сочетание инновационных технологий и характерных этнических элементов делает интерьер вневременным.

Выставка конкурсных проектов
ВЫСТАВКА КРАСИВЫЕ ДОМА - 2026

ФОТОГАЛЕРЕЯ
ЭКСПОЗИЦИИ
КОНКУРСНЫХ
ПРОЕКТОВ

КАК ЭТО БЫЛО
Выставка конкурсных проектов проходит дважды в год (Весна | Осень)

Отзывы

Можно использовать **жирный**, *курсив*, [ссылку](https://example.com), списки через - или 1.
Пока отзывов нет. Будьте первым.