Вишера. Гостевой дом и баня
Фото: Роман Шаленкин
Для заказчика деревянный дом всегда был мечтой, а мы считаем, что с мечтой нужно обходиться бережно. Так проект «Вишера» стал точным воплощением идей хозяев снаружи и сосредоточением множества интересных деталей во внутренней отделке.
В комплексе огромное количество деталей тонкой ручной работы. Например, плитка. Изначально в проекте фигурировала метлахская плитка, но в результате утвердили другой узор. Мы закупили плитку и вручную довели до нужного результата. Обработали ее водоотталкивающим и пятнозащитным составами, а затем покрыли лаком.
Еще одна гордость — русская печь, воплощенная в жизнь идея хозяйки. Печь получилась будто из сказки: настоящая русская печь в изразцах, собранная вручную.
В части технологий «Вишера» — это классический пример бревенчатого строения Smart Wood, где первый этаж бревенчатый, а мансардный этаж выполнен из каркаса Post&Beam.
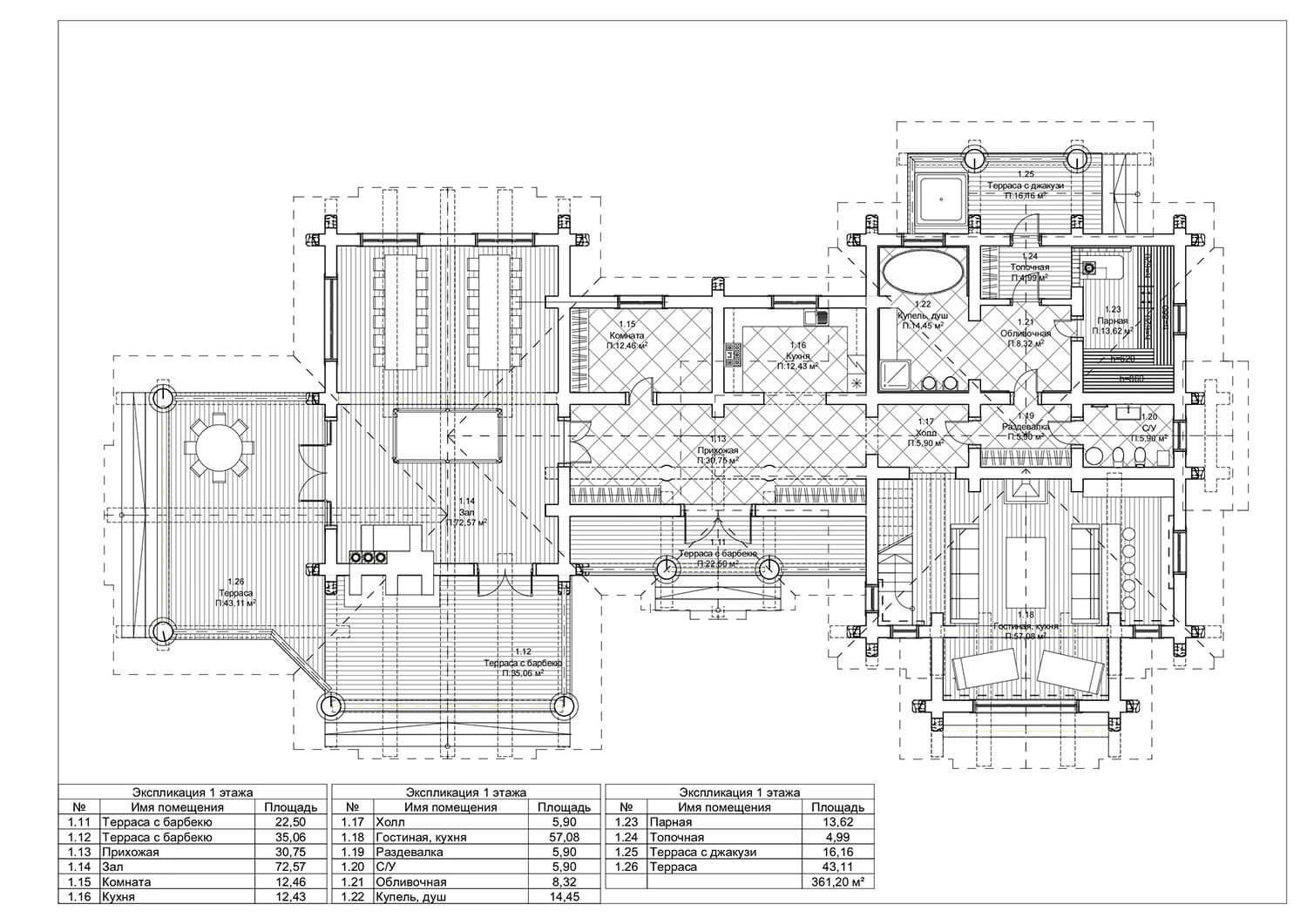
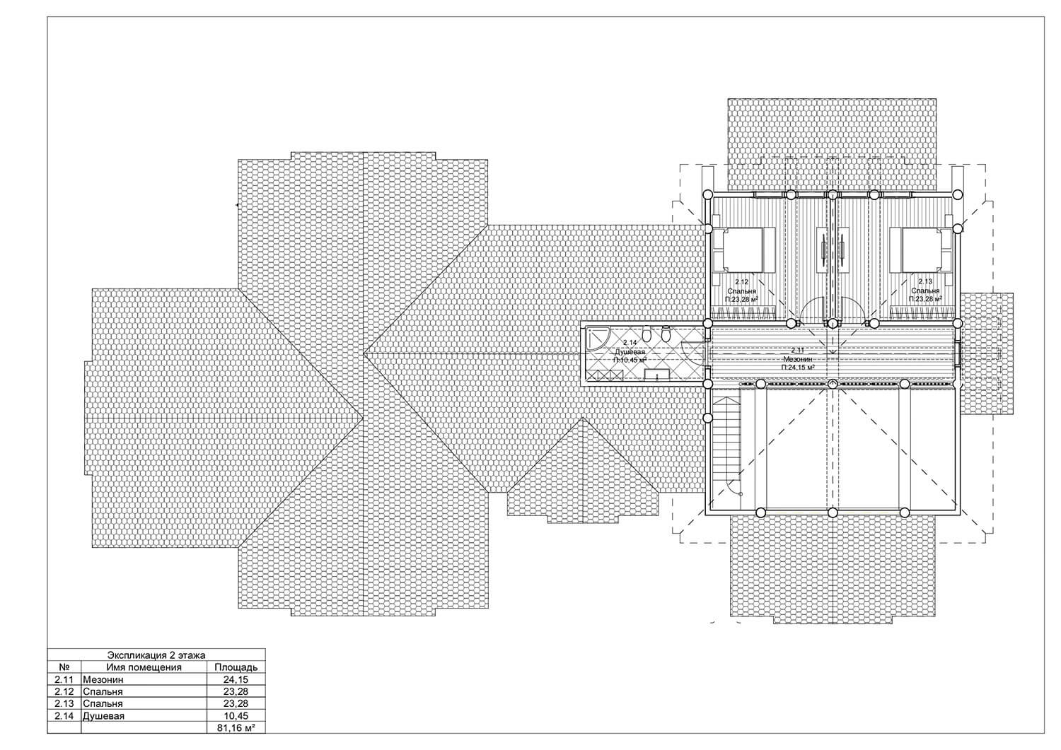
Площадь объекта — 560 кв.м.
Материал — сибирский кедр от 420 мм в вершине.
Технология — классическая усадочная.
Угловое соединение — канадская (седловидная) чаша.
Дом полностью автоматизирован по протоколу KNX.















