Множественный выбор
Выбрать номинацию

Времена года

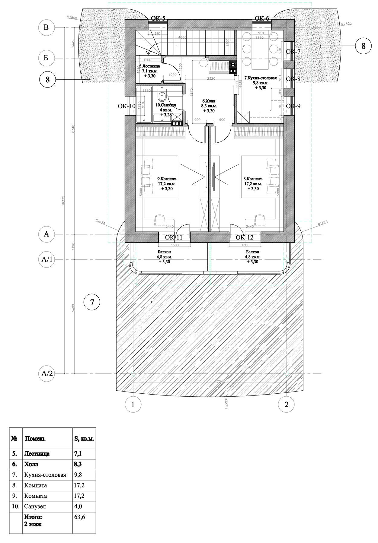
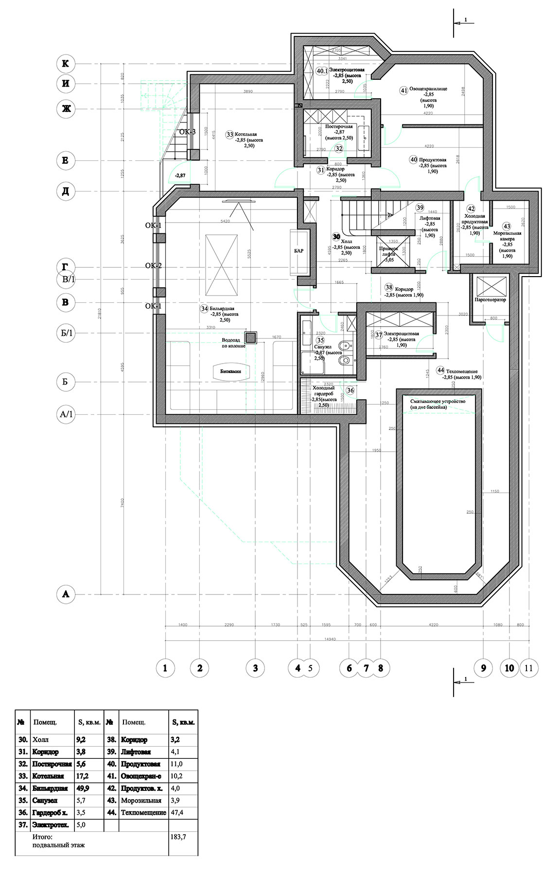
Основной дом располагается вдоль восточной стороны относительно плоского ровного участка, вытянутого с запада на восток. Парадное крыльцо входной группы с навесом размещено с северной стороны дома. Основные жилые помещения дома (гостиная, кухня-столовая, кабинеты, хозяйская спальня, будуар хозяйки, бассейн и т.д.) а также балкон второго этажа и терраса, соединяющая балкон первого этажа с бассейном, выходят на южную и западную стороны и развернуты к середине участка. На цокольном этаже обустроены технические и хозяйственные помещения, а также помещения для отдыха. Первый этаж дома занимают основные помещения общего пользования, бассейн с баней, сауной и спорткомплексом. Второй этаж — приватные апартаменты хозяев, а также спальня и санузел для гостей. Часть помещений первого и второго этажей разнесены в уровнях на 0,6 м. На чердаке находятся технические помещения универсального назначения. Дом оснащен трехмаршевой лестницей, соединяющей все этажи, и лифтом, связывающим три нижних уровня (кроме мансарды). Фасады дома выдержаны в стиле московского модерна.

Материалы отделки фасадов: облицовочный бежево-желтый кирпич, белая декоративная (в т.ч. рельефная) штукатурка, серый камень «скала», светлая керамическая плитка декора и серый керамический гранит, а также керамическая плитка с художественной росписью, украшающая фронтоны. Именно она придает дому индивидуальность. Сюжеты изображений «времена года» на фронтонах соответствуют сторонам света. Покрытие основной кровли — металлочерепица, козырьков и других элементов — фальцевое листовое. Ограждения лестниц и балконов — кованые стального оттенка. Окна и двери — стеклопакеты (двух- или трехкамерные) в деревянных (или пластик «под дерево») окладах коричневого оттенка (орех).

Гаражно-гостевой блок располагается вдоль западной стороны относительно плоского ровного участка, вытянутого с запада на восток. Фасады гаражно-гостевого блока также выдержаны в стиле московского модерна, как и основной дом.

Выставка конкурсных проектов
ВЫСТАВКА КРАСИВЫЕ ДОМА - 2026

ФОТОГАЛЕРЕЯ
ЭКСПОЗИЦИИ
КОНКУРСНЫХ
ПРОЕКТОВ

КАК ЭТО БЫЛО
Выставка конкурсных проектов проходит дважды в год (Весна | Осень)

Отзывы

Можно использовать **жирный**, *курсив*, [ссылку](https://example.com), списки через - или 1.
Пока отзывов нет. Будьте первым.