Множественный выбор
Выбрать номинацию

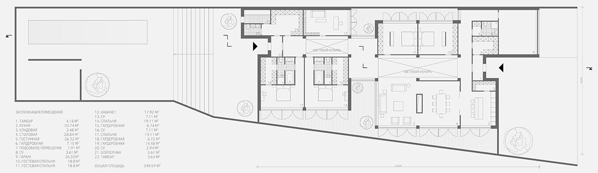
White House*

Одноэтажный жилой дом площадью 350 м² расположен в плотном массиве жилой застройки, что впоследствии и определило его форму.

Массивная сплошная стена ограждает весь участок, что позволяет скрыть частную жизнь обитателей дома. А консольные вылеты крыши обеспечивают теневую зону на участке. Фасад дома, а так же стены, выполняющие функцию забора, отделаны декоративной белой штукатуркой под бетон.

Функционально здание разделено на две основные зоны: общественную и приватную. Помещения нанизаны на одну общую ось — длинный освещаемый фонарями коридор. Общественная зона состоит из кухни, столовой и большой гостиной, которые разделены между собой камином. На противоположной стороне две гостевые спальни.

Во второй зоне дома, предусмотрены две большие спальни со своими ванными комнатами и гардеробными, а так же кабинет. Через приватную зону можно выйти во внутренний двор с бассейном.

Выставка конкурсных проектов
ВЫСТАВКА КРАСИВЫЕ ДОМА - 2026

ФОТОГАЛЕРЕЯ
ЭКСПОЗИЦИИ
КОНКУРСНЫХ
ПРОЕКТОВ

КАК ЭТО БЫЛО
Выставка конкурсных проектов проходит дважды в год (Весна | Осень)

Отзывы

Можно использовать **жирный**, *курсив*, [ссылку](https://example.com), списки через - или 1.
Пока отзывов нет. Будьте первым.