Множественный выбор
Выбрать номинацию

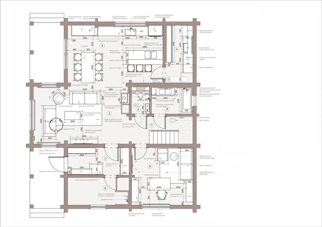
Яркий минимализм в деревянном доме

Двухэтажный дом из клееного бруса.
Внутренняя планировочная площадь 171,5 м².

Интерьер — современный минимализм с яркими акцентами и сохранением природной фактуры дерева. Этот дом создавался для семьи, где у каждого — свой ритм, свои увлечения, свои тихие радости. Для тех, кто живёт активно, но ценит моменты покоя, кто любит спорт, природу и атмосферу дома, куда приятно возвращаться.

Увлечений у молодой пары много: хозяин семьи — рыбалка, велосипед, мотоцикл, коллекционирует минералы, ножи, катается на сноуборде и лыжах, подлёдная рыбалка, гитара. Хозяйка — спорт фитнес, горные лыжи, велосипед, рисование, швейное дело, готовка. Очень любят свою собаку породы джек-рассел-терьер и в будущем хотят завести ещё одного такого же зверька. Пара вырастила двух сыновей, у каждого из которых своя комната в доме.

Главная идея проекта — сохранить натуральный материал бруса и вплести в него современную эстетику: чистые линии, свет, лёгкость, акценты. Сделать многофункциональные помещения. Здесь нет лишнего декора — всё подчинено функциональности и внутреннему равновесию.

В доме продумано многое:

• отдельные шкафы для обуви и одежды;
• место для мытья собак;
• тёплая гостиная со вторым светом, камином и мягкими диванами, где собирается семья;
• камин видно и со стороны гостиной, и со стороны кухни;
• кухонный гарнитур без верхних шкафов, но с достаточным количеством мест хранения, где нашлось место и винному шкафу, и двухдверному большому холодильнику;
• зона для завтраков за барной стойкой;
• функциональное помещение, совмещающее в себе кладовую и постирочную;
• три санузла;
• спокойные спальни, наполненные воздухом и светом;
• при главной спальне — своя гардеробная с местом для швейной машинки;
• кабинет с витринным шкафом для коллекций хозяина.

Дизайн начинается с характера тех, кто здесь будет жить. Изучение их вкуса, привычек, ожиданий позволяет создать не обезличенное, а по-настоящему «своё» пространство, где каждая деталь наполнена смыслом. Это интерьер, где дизайн — не демонстрация, а отражение характера семьи.

Выставка конкурсных проектов
ВЫСТАВКА КРАСИВЫЕ ДОМА - 2026

ФОТОГАЛЕРЕЯ
ЭКСПОЗИЦИИ
КОНКУРСНЫХ
ПРОЕКТОВ

КАК ЭТО БЫЛО
Выставка конкурсных проектов проходит дважды в год (Весна | Осень)

Отзывы

Можно использовать **жирный**, *курсив*, [ссылку](https://example.com), списки через - или 1.
Пока отзывов нет. Будьте первым.