Загородный дом из бруса
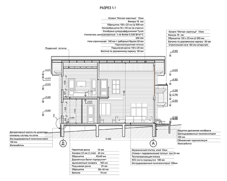
Главная идея проекта — максимально объединить архитектуру с природой, чтобы ощущение пребывания за городом в лесу сохранялось и в доме. Поэтому был выбран экологический материал — брус, который присутствует в интерьере. Высокий витраж в гостиной открывает панорамный вид на участок, где сохранены все деревья. Гостиная высотой в два этажа наполнена воздухом и светом, этот эффект усиливают оставленные открытыми деревянные балки под мансардной кровлей. Помещения второго этажа выходят на внутренний балкон, с которого открывается обзор гостиной и через витраж — леса: тем самым привычное пространство трансформируется. Окна комнат и спальни выходят на восточную сторону и «встречают» утреннее солнце. Хозяйственное и техническое помещения компактно собраны в один блок, отделенный небольшим коридором.
Терраса с обеденной зоной и зоной барбекю, на которую можно выйти из всех общих помещений, соединяется с крыльцом и служит промежуточным пространством между домом и природным окружением.
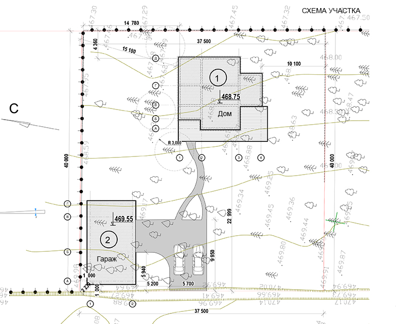
Общая площадь помещений дома: 160,2 м²
Площадь помещений 1 этажа: 101,1 м²
Площадь помещений 2 этажа: 59,1 м²
Площадь террасы: 44,6 м²







