Загородный дом из клееного бруса Диалог эпох
Реализованный проект загородного дома в предместье Петербурга раскрылся как тонкий диалог с прошлым, в котором настоящее наполнено духом русских летних резиденций конца XIXначала XXвеков.
Заказчик, житель Петергофа в четвертом поколении, глубокий знаток русской архитектуры и искусства, хотел объединить лучшие приемы оформления исторических дач с преимуществами, которые дают современные технологии. Поэтому в доме сочетаются конструктивные решения, свойственные постройкам из клееного бруса, и деталихарактерные для архитектуры русских дворянских усадебэпохи Серебряного века.
В оформление фасадов дома и ограждения участкабыли деликатно добавлены элементы кованого декора, выполненные вручную по оригинальным историческим моделям. Уделялось внимание каждой мелочи, поэтому даже выбор ткани для маркиз сталоммажемтрадиционному летнему оформлению Петергофских великокняжескихрезиденций. Размещенная рядом с домом аутентичная английская теплица, стала естественным продолжением этой темы.
При посадке на участок, дом был немного сдвинут к северной границеи к въезду на участок, что позволило организовать более просторное приватное пространство со стороны южного фасада, утопающее в цветах и скрытое от посторонних глаз. Северный фасад украсила элегантная входная группа, тогда как южный фасад раскрывается в сад панорамными окнами и просторной открытой террасой. Где под выдвижным тентом, летними вечерами, могут собираться все поколения большой и дружной семьи. Ведь дом задумывался как настоящее родовое «гнездо», теплое и комфортное.
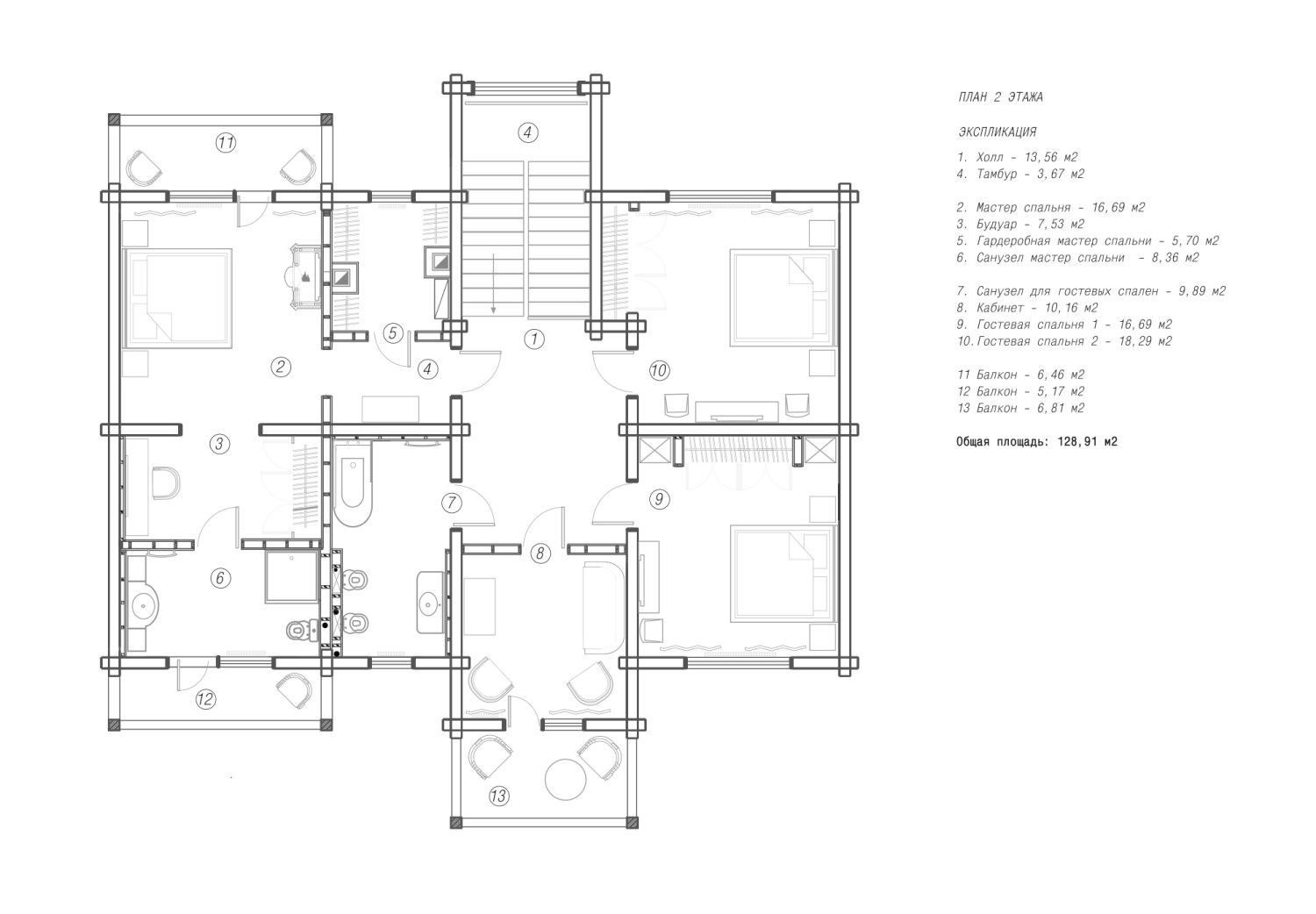
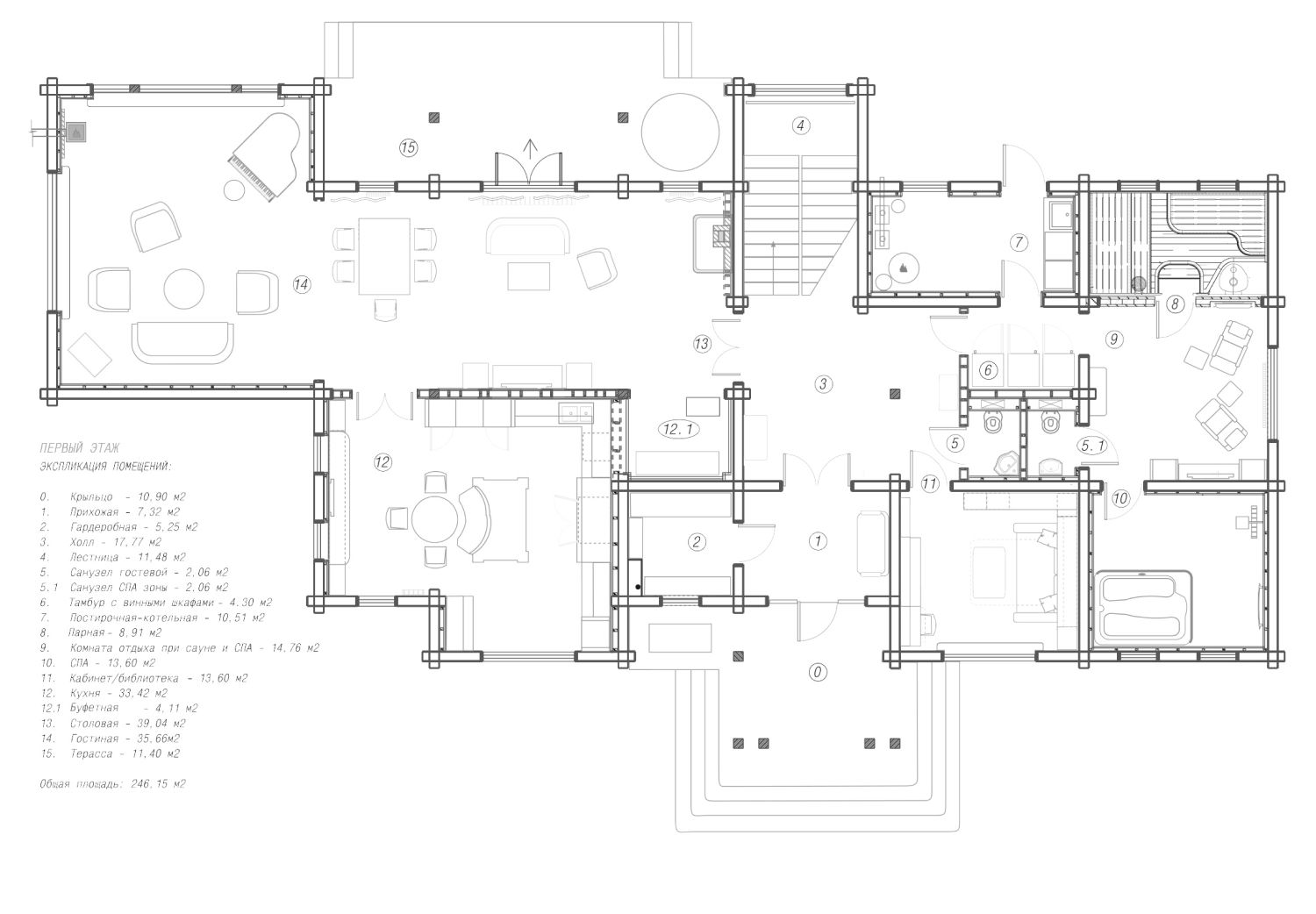
Внутреннее пространство дома сложилось из парадной части, отделенной от вспомогательных помещений большим холлом с изящной дубовой лестницей и двухсветным панорамным окном, и приватной зоны второго этажа, где располагаются спальни и кабинет хозяйки. Основную часть первого этажа занимает анфилада гостиной – столовой, которая завершается смысловым центром дома – боскетной, превращенной в музыкальную гостиную. Ее большие панорамные окна смотрят в прекрасный сад, который был заложен в самом начале строительства дома. Следуя принципу гармонии с окружающей культурной средой, выбор растений и вся организация сада определялись видами петергофских архитектурно-ландшафтных шедевров. К завершению реализации проекта у заказчика уже была возможность любоваться сформированными цветниками и подросшими деревьями.
Отзывы
Дань традиции и семейного уюта. Современные технологии и искусство мастеров. Функциональность и композиционность планировки.













