Множественный выбор
Выбрать номинацию

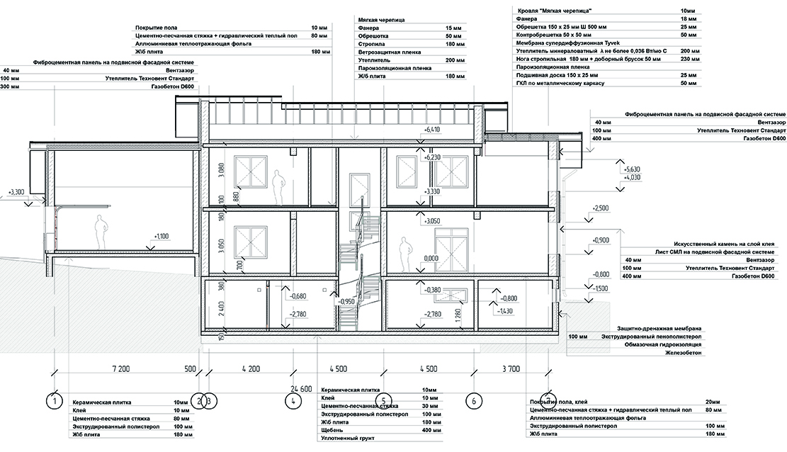
Загородный дом в Сибири 1

Дом для молодой семьи с тремя детьми. Большие витражные окна не только обеспечивают прекрасную инсоляцию помещений, но и открывают обзор двора со всеми необходимыми постройками, зонами, площадками для детей, наличие которых было предусмотрено еще на этапе разработки проекта усадьбы. Из гостиной и столовой можно выйти на террасу, которая тянется вдоль дома и соединяется с крыльцом. С учетом уклона участка грамотно продумана конструктивная и функциональная связь дома с гаражом.

Три детские и игровая комнаты были обязательным условием заказчиков. Большое количество помещений усложняло задачу компактного планирования дома. Чтобы ее решить, в проект включили эргономичные холлы, минимизировав площадь коридоров. Уклон участка позволил эффективно использовать пространство цоколя под технические и хозяйственные нужды. Фасадам придали легкость и графичность, применив для их отделки природные материалы: дерево, камень, штукатурку.

Общая площадь помещений дома: 362,8 м²
Площадь помещений 1 этажа: 188,7 м²
Площадь помещений 2 этажа: 114,6 м²
Площадь помещений подвала: 59,5 м²

Выставка конкурсных проектов
ВЫСТАВКА КРАСИВЫЕ ДОМА - 2026

ФОТОГАЛЕРЕЯ
ЭКСПОЗИЦИИ
КОНКУРСНЫХ
ПРОЕКТОВ

КАК ЭТО БЫЛО
Выставка конкурсных проектов проходит дважды в год (Весна | Осень)

Отзывы

Можно использовать **жирный**, *курсив*, [ссылку](https://example.com), списки через - или 1.
Пока отзывов нет. Будьте первым.