Множественный выбор
Выбрать номинацию

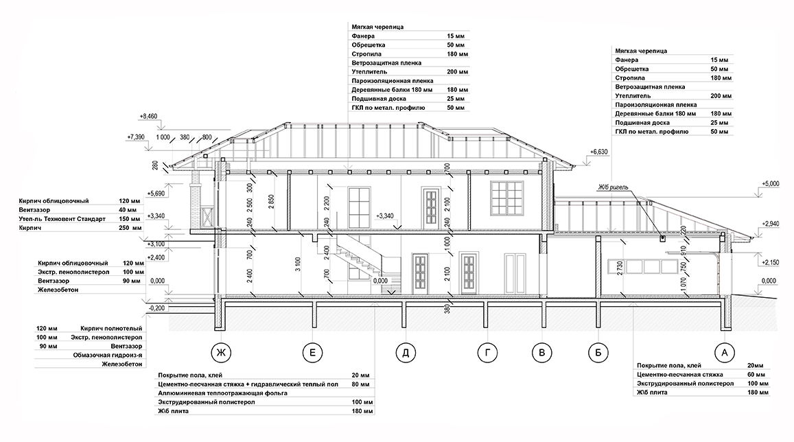
Загородный дом в Сибири 2

Проект загородного двухэтажного дома разрабатывался для большой семьи. Просторные помещения, возможность проведения застолий и приема гостей в доме и на террасе, парадный холл с лестницей и витражом — таковы были пожелания хозяев. Высокие окна позволяют любоваться внутренним двором и садом, которые благодаря грамотному планированию участка получились достаточно приватными.

На втором этаже размещены просторные спальни с продуманной системой хранения — гардеробными. Балконы при спальнях обеспечивают связь с природой.

Фасады отражают предпочтение заказчиками легкого классического стиля, который просматривается в пластике форм здания и крыши, колоннах, балконах, декоративных элементах. Мягкое сочетание цветов на фасаде поддерживает классический образ.

Общая площадь помещений дома: 328,8 м²
Площадь помещений 1 этажа: 195,8 м²
Площадь помещений 2 этажа: 133,0 м²

Выставка конкурсных проектов
ВЫСТАВКА КРАСИВЫЕ ДОМА - 2026

ФОТОГАЛЕРЕЯ
ЭКСПОЗИЦИИ
КОНКУРСНЫХ
ПРОЕКТОВ

КАК ЭТО БЫЛО
Выставка конкурсных проектов проходит дважды в год (Весна | Осень)

Отзывы

Можно использовать **жирный**, *курсив*, [ссылку](https://example.com), списки через - или 1.
Пока отзывов нет. Будьте первым.