Множественный выбор
Выбрать номинацию

Загородный дом в стиле шале*

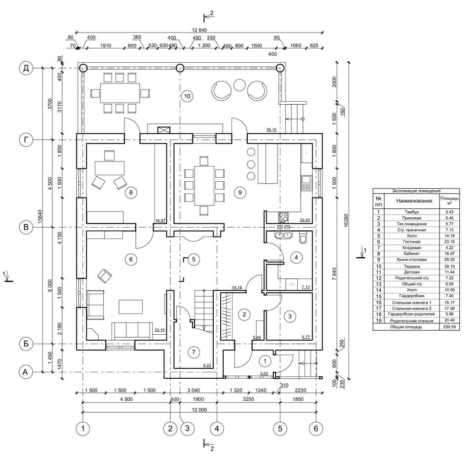
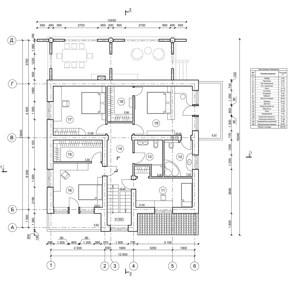
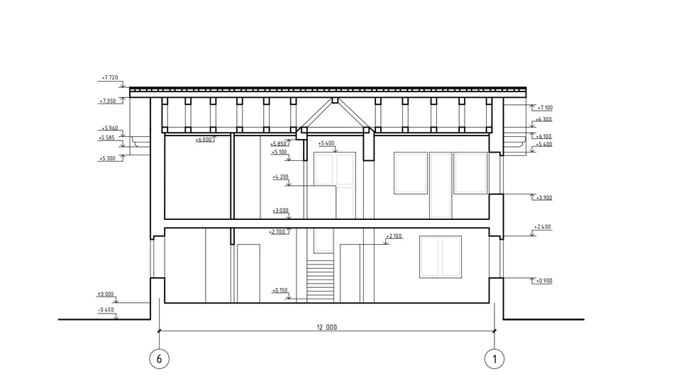
Данный проект разработан в стиле шале с использованием природных материалов — камня и дерева. Проектом предусматривается расположение дома в селе Астраханка Приморского края.

Данный стиль выбран не случайно, так как он органично вписывается в местную архитектуру и соответствует климатическим условиям региона. Предусматривается стеновая конструктивная система, наличие двух этажей, летней террасы и отсутствие подвала.

Облицовка фасада выполнена из декоративного камня, находящего на цоколе, штукатурки, которой покрыт первый этаж, и деревянными декоративными панелями на втором этаже. Также на территории участка предусматривается расположение летней беседки и гаража.

Проектируемый жилой дом рассчитан на семью 3-5 человек, и в нем предусмотрены все необходимые помещения, в том числе и сауна. Проектируемый объект располагается так, чтобы солнечные лучи попадали в жилые комнаты - тем самым они будут инсолироваться, что немаловажно.

Выставка конкурсных проектов
ВЫСТАВКА КРАСИВЫЕ ДОМА - 2026

ФОТОГАЛЕРЕЯ
ЭКСПОЗИЦИИ
КОНКУРСНЫХ
ПРОЕКТОВ

КАК ЭТО БЫЛО
Выставка конкурсных проектов проходит дважды в год (Весна | Осень)

Отзывы

Можно использовать **жирный**, *курсив*, [ссылку](https://example.com), списки через - или 1.
Пока отзывов нет. Будьте первым.