Загородный жилой дом Медвежий угол
Планировка дома решена в одном уровне. Расположение проектируемого дома на участке продиктовано сохранением существующих зеленых насаждений, сторонами света, расположением технических коммуникаций и подъездных дорог. Планировка выполнена с учетом функционального зонирования помещений на гостевые, приватные и технические.
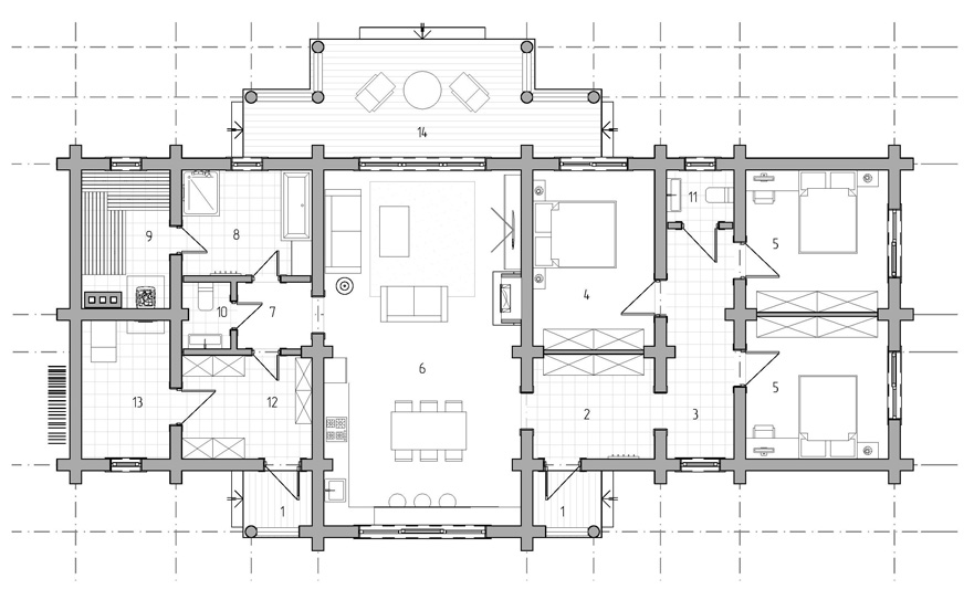
В доме предусмотрен главный вход с крыльцом, прихожая со шкафом, кухня-гостиная в едином объёме подкровельного пространства, с зоной ТВ и печью-камином. Из кухни-гостиной предусмотрен выход на крытую неостеклённую террасу. В приватной части расположены хозяйская спальня, две детские и санузел. Также в доме предусмотрена небольшая парная комната с помывочной и гостевым санузлом. Второй вход в дом расположен из постирочной и котельной. По боковому фасаду увеличены выпуски кровли для хранения дров.
Несущими конструкциями здания являются наружные и внутренние стены. Фундамент ленточный. Наружные стены - бревенчаты d=280 мм, сухостойная сосна KELO. Внутренние стены - бревенчаты d=280 мм, сухостойная сосна KELO. Перегородки - каркасные. Перекрытие пола первого этажа - полы по грунту с утеплением ЭППС. Крыша - двускатная (утеплённая толщиной 300 мм). Стропила - из деревянного бруса 50x200 мм. Кровля - открытая деревянная стропильная конструкция с покрытием из пескоцементной черепицы.







