Завидово
Современная архитектура дома общей площадью 641,08 м² из клееного бруса со сложной геометрией стен и внутренних пространств детально продумана. Экспрессивная архитектура, складывающаяся из сложной многоскатной стропильной конструкции, изящных клееных балок и масштабного панорамного остекления придает дому статус арт-объекта.
Проект дома выполнен в стилях хай-тех и минимализм, которые подчеркиваются в филигранности несущих конструкций из дерева, сочетаемых с ограждениями из стекла, металлическими элементами. Данному типу строения характерна значительная высота потолков, что обеспечивает его владельцам много воздуха и простора. Дом с таким внешним видом и планировочным решением создает цельный образ дома ХХI века и располагает к комфортному проживанию всех его обитателей.
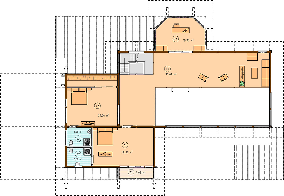
Общая площадь — 641,08 м²
Площадь помещений – 488,09 м²
Размер 18,6 х 31,3 м







