Жажда скорости
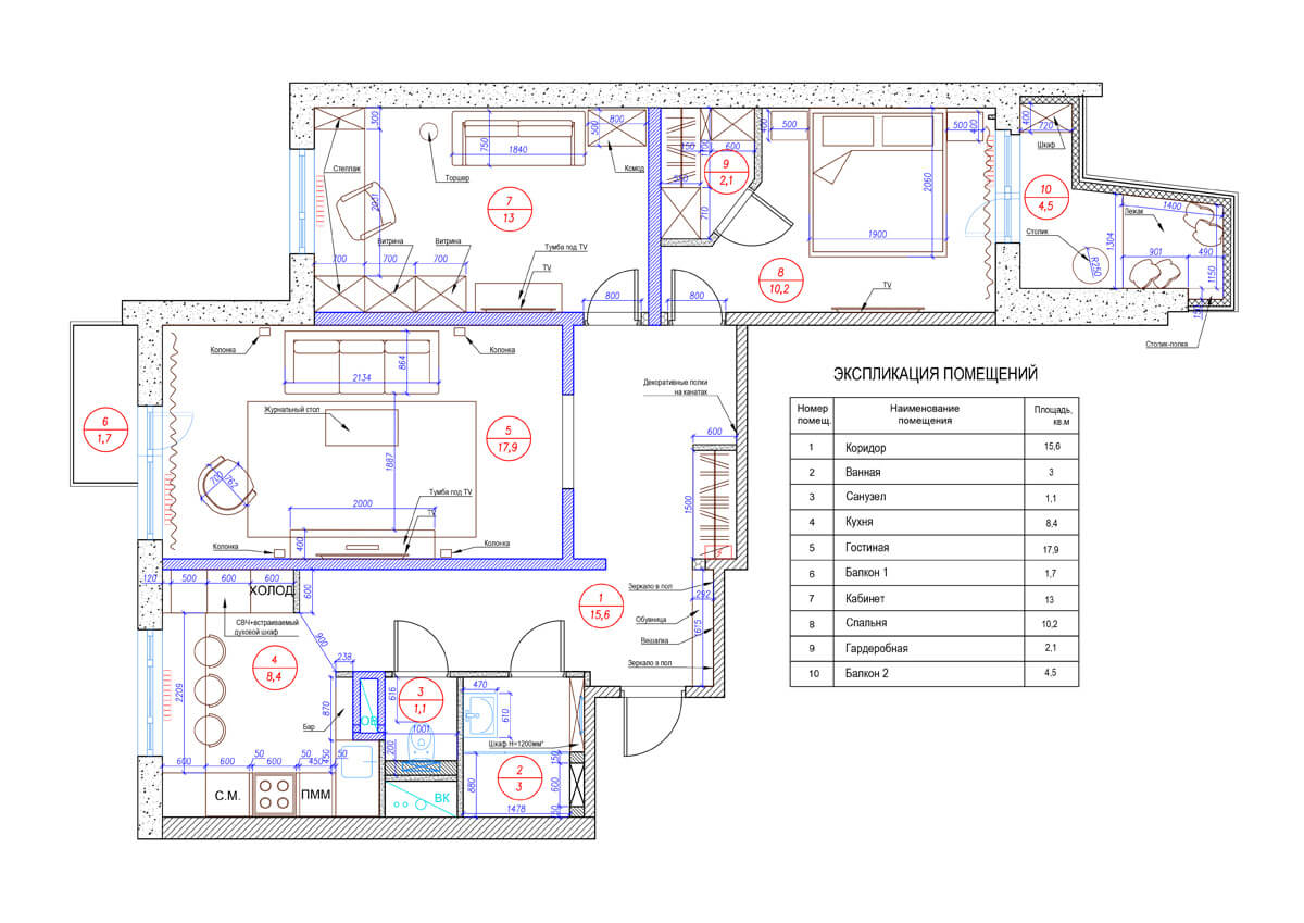
В концепции проекта обыгрывается тема скорости. Дизайн квартиры, общей площадью 80 кв.м, выполнен в стиле лофт и полностью отображает характер своего владельца. Хозяин этого жилья — холостяк, натура неординарная, предпочитает динамику и активность.
Но всегда есть правила, которые не нужно нарушать! Знак ограничения скорости расположен в кухне над баром. Ограничения не только в скорости, но и в градусах. Барные стулья с необычными подножками отлично вписываются в интерьер. Трековые системы, оригинальная люстра и журнальный стол-река в гостиной создают атмосферу комфорта и уюта. А необычные бесшовные обои с геометрическим рисунком добавляют своеобразия интерьеру.
В квартире выделено отдельное помещение для работы и хобби. Это кабинет, который дает возможность отвлечься от ежедневной рутины и посвятить время любимому делу — фотографии. Спальня холостяка — что-то личное, особенное. Сочетание грубого бетона, дерева и четких линий на стене — отражение мужского характера и динамичного образа жизни. Все это яркие черты стиля лофт, которые так нравятся нашему заказчику.
Интерьер этого пространства отражает графичность, динамику и брутальность.
Очень важно, когда в интерьере удается сохранить настроение квартиры и передать характер человека, который в ней живет.












