Жилой дом архитектора
Частный двухэтажный дом для архитектора и его семьи, запроектированный для круглогодичного использования, расположен на скалистом мысу на Ладожском озере. Для творческой натуры необходимо место для уединения, и такое место, окруженное густым лесом, как раз подходит для тихой работы.
Основная идея — создание нестандартного и динамичного образа дома, который будет домом — образом определенного человека, а именно архитектора.
Планировочное решение продиктовано тем, что дом будет использоваться как место для семейного отдыха, вдали от городской суеты, так и для работы.
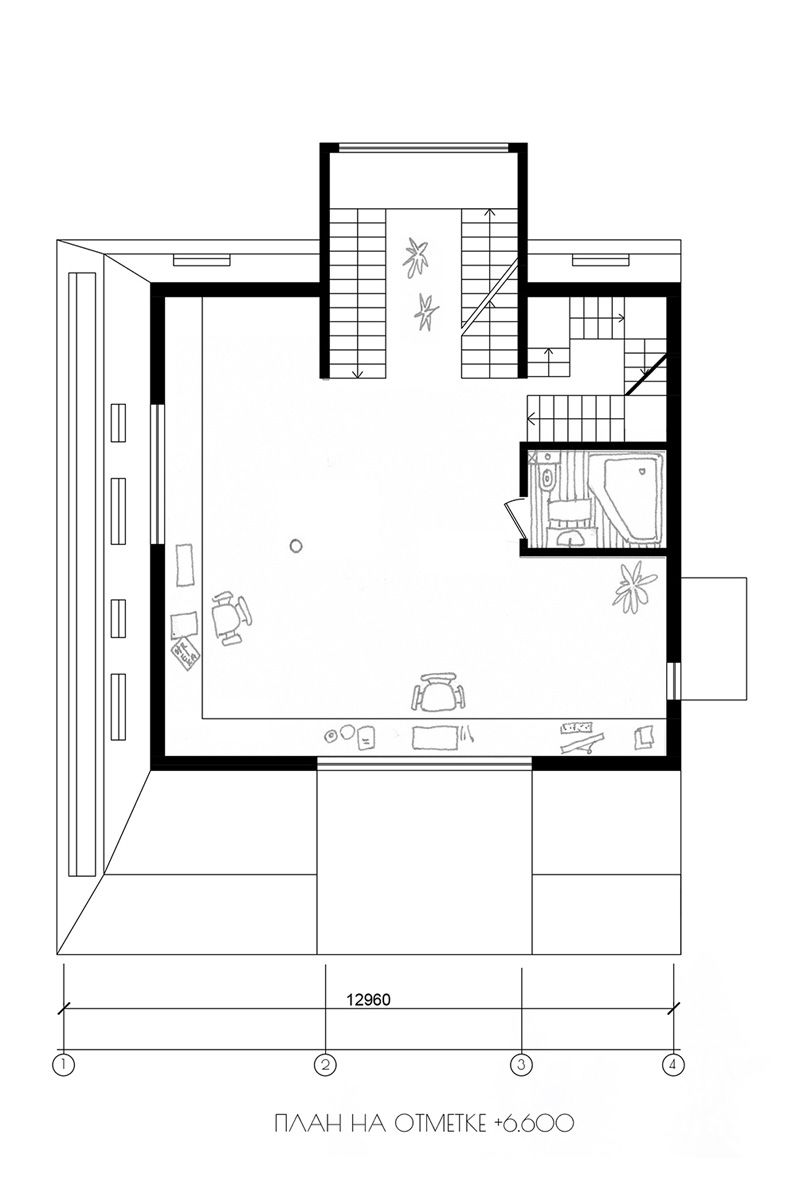
Первый этаж — это объединенное пространство кухни, столовой и гостиной, в центре которого расположена большая дровяная печь. Место для хранения вынесено в гардеробную комнату, чтобы освободить комнаты от лишней мебели. На втором этаже — спальная зона и рабочий кабинет. Третий этаж полностью отдан под мастерскую архитектура. Имеется также четвертый полуэтаж с кроватью и небольшим балконом, на котором стоит телескоп.
Перед домом расположена терраса с костром. Летом можно выходить из кухни сразу на террасу и проводить теплые летние вечера, глядя на звезды.
Дом выполнен в скандинавском стиле: много дерева, стекла, теплые интерьеры.











