Жилой дом с парной (Экибастуз)
Здание одноэтажное, с совмещенной скатной кровлей, без подвала. Устройство крыши: деревянная стропильная конструкция с эффективным утеплителем; тип покрытия — мягкая или фальцевая кровля.
Архитектурное решение образа — объемно-пространственная композиция, несимметричная в основе и подчеркнутая линиями кровель. Широкие и большие свесы усиливают ценность объема и акцентируют его связь с ландшафтом.
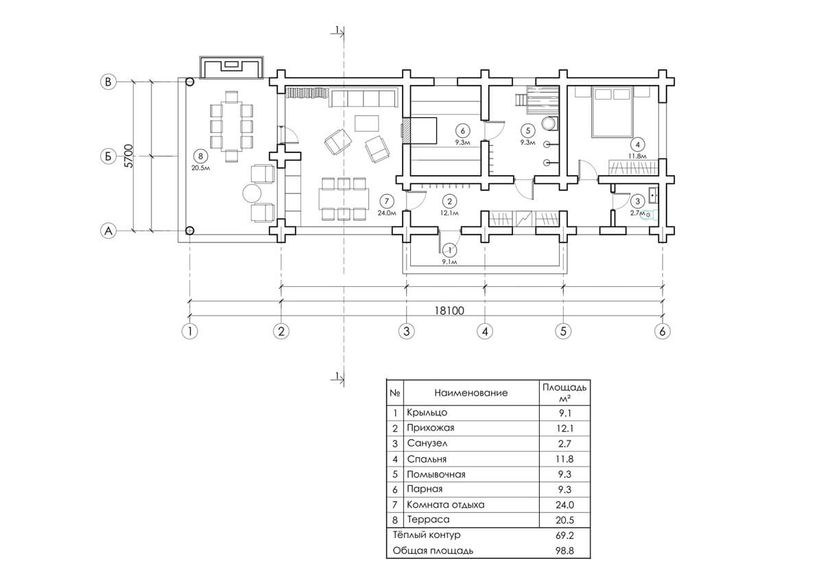
Планировка выполнена с учетом функционального зонирования помещений и включает террасу, санузел, комнату отдыха, парную, помывочную, спальню.
Инженерное обеспечение: водоотвод и канализация, отопление, вентиляция естественная, электроосвещение и электрооборудование.
Отзывы
Пока отзывов нет. Будьте первым.












