Жилой дом в Крыму
Проект предусматривал расположение всех общественных помещений на первом этаже дома. Еще одной задачей, стоявшей перед архитектором, было увеличение внутреннего пространства за счет уменьшения количества коридоров.
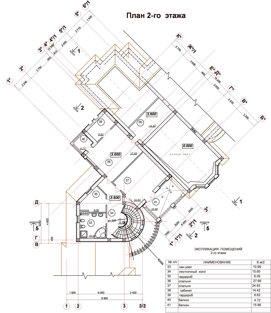
Детские спальни, санузел и гардероб размещены на втором этаже — эта часть дома принадлежит детям. На цокольном этаже обустроены технические помещения и бильярдная.
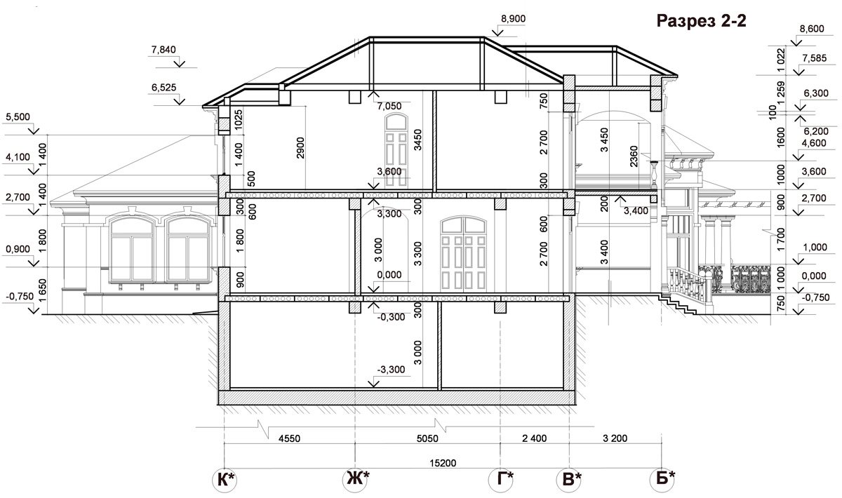
Среднюю часть дома составляют три этажа. Два из них — надземные. Они различаются конфигурацией кровли и высотой потолков, которая зависит от функционального назначения комнат: в гостиной — 5 м, в столовой и кухне — 4 м, бассейне — 3,5 м, парадном холле и спальне владельца дома — 3,3 м, а в гараже, санузлах, кладовых и парной этот параметр составляет 2,9 м.
Здание расположено так, что основная часть помещений выходит окнами во внутренний двор и на южную сторону.














