ЖК Union Park
Сейчас эта квартира очаровывает буквально всем: от современного уютного интерьера до панорамного вида на Живописный мост и город с высоты 8 этажа.
Изначально жилплощадь без отделки была приобретена для мамы и двух сыновей: 7 и 10 лет, в кирпично-монолитном доме ЖК Union Park в живописном районе Хорошёво-Мневники. Планировочное решение от застройщика прилагалось, однако оно абсолютно не отвечало масштабным планам будущих жильцов. Ведь интерьер —основа для жизни, его следовало выстроить под конкретную семью, её запросы, образ жизни.
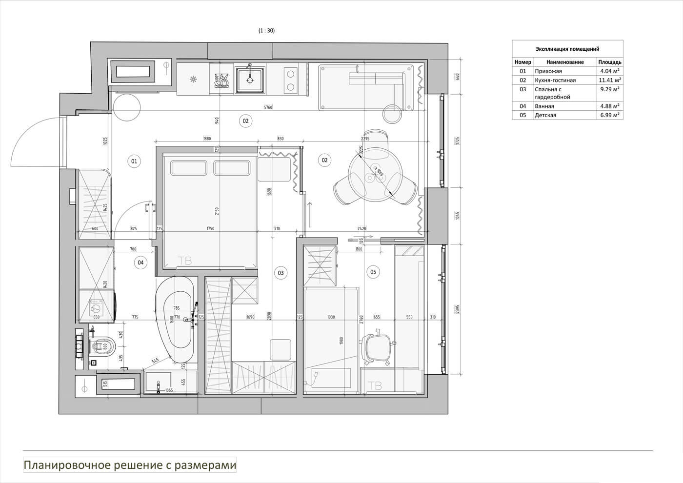
На площади, предназначенной для однокомнатной квартиры, предполагалось создать зону гостиной с примыкающей к ней кухней, выделить приватный блок для мамы и отдельную комнату подрастающего поколения, организовать гардеробную, санузел и прихожую. Не менее важной задачей стало сохранение максимального количества дневного света во всех комнатах.
Большинство людей любят спокойные тона для жизни и отдыха, но дизайнер интерьера это необычный челочек. Яркий цвет заряжает энергией, поэтому он жизненно необходим динамичным людям.
По интерьеру сразу виден характер. Панно из мозаики в кухне-гостиной с известной иконой стиля и дизайнером интерьеров Айрис Апфель служит акцентом всего пространства и отражает творческую составляющую личности.
Небольшая спальня и детская комната необходимы только для сна и отдыха, но в них есть все необходимое из предметов мебели и отдельная гардеробная зона, а главное много света. Естественный свет в спальне удалось сохранить за счет стеклянной перегородки вместо стен, а много текстиля в спальне создает особый уют и обволакивающее пространство.
В этой небольшой квартире благодаря отдельным зонам нет ощущения маленького пространства.













