Множественный выбор
Выбрать номинацию

Зимний дом с баней и хозяйственной постройкой

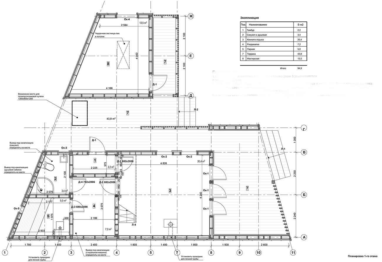
При проектировании объекта стояла задача построить компактный, но простой в обслуживании зимний дом с баней, для зимнего проживания, как альтернатива большому кирпичному дому, расположенному на участке. Пространственная композиция представляет собой два геометрически подобных здания, объединенных общей террасой, покрытой декингом. Терраса частично перекрыта кровлей большого дома, а также в один уровень с полом в нее встроена небольшая купель. Когда купель не используется, она закрыта крышкой и сливается с покрытием террасы.

Здания каркасные, в качестве фундамента использовались винтовые сваи. Отделочные материалы экстерьера и интерьера перекликаются, объединяясь в единую архитектурную концепцию. Трапецивидная форма участка, на котором расположен дом, повлияла на композицию объемов и внутреннюю планировку, так, в частности, в парной появились треугольные полоки.

Большой дом является жилым, на 1-м этаже располагается прихожая, двусветная комната отдыха с печью-камином, предбанник с кухней-нишей, санузел и парная. На втором антресольном этаже располагается спальня и художественная мастерская. Из комнаты отдыха на первом этаже через окна-двери можно выйти на крытую часть террасы.

Маленький дом предназначен для хранения садового инвентаря и других инструментов, также там оборудовано место с верстаком для столярных работ. Кровля здания накрывает небольшую террасу перед входом, на которой располагается дровница.

Выставка конкурсных проектов
ВЫСТАВКА КРАСИВЫЕ ДОМА - 2026

ФОТОГАЛЕРЕЯ
ЭКСПОЗИЦИИ
КОНКУРСНЫХ
ПРОЕКТОВ

КАК ЭТО БЫЛО
Выставка конкурсных проектов проходит дважды в год (Весна | Осень)

Отзывы

Можно использовать **жирный**, *курсив*, [ссылку](https://example.com), списки через - или 1.
Пока отзывов нет. Будьте первым.