Множественный выбор
Выбрать номинацию

Золотой топаз

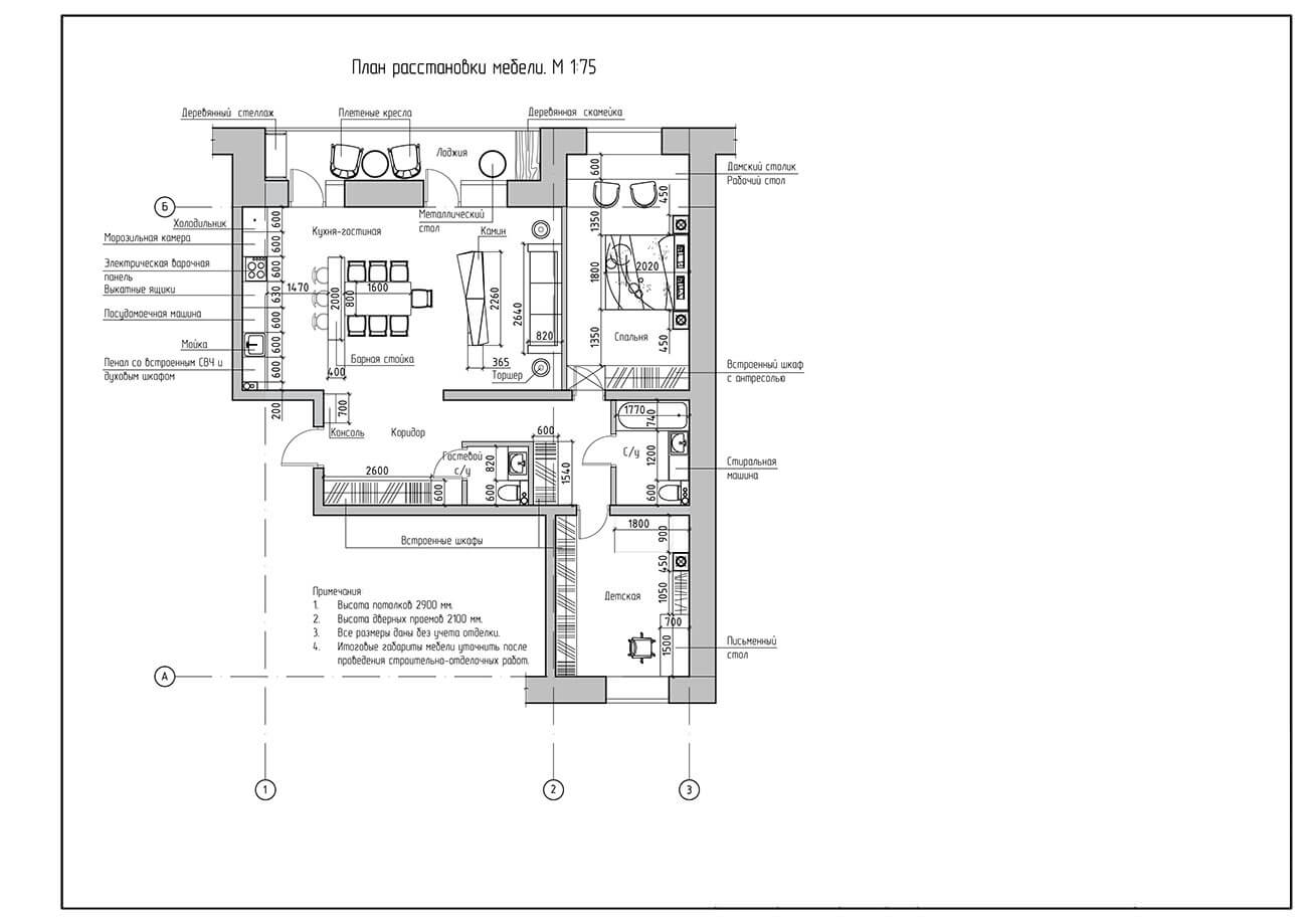
Клиенты обратились с пожеланиями сделать перепланировку квартиры, в итоге мы утвердили два решения:

- в квартире есть два санузла, один из которых решили сделать гостевым. За счет увеличения его площади коридор стал уже, отделив две спальни с прилегающей к ним ванной комнатой, и создал более личное пространство для жильцов;
- изначально гостиная и кухня были разделены на две отдельные комнаты — мы решили их объединить.

Главной изюминкой интерьера стал камин Dimplex Cassette 500. Клиенты попросили сделать не просто камин, а уникальную инсталляцию, которая будет притягивать взгляды и открываться по-новому с каждого ракурса. Вдохновляясь языками пламени, автор проекта создала объем с изогнутыми линями с каждой стороны. И теперь, где бы вы ни находились в комнате, вы всегда будете видеть новую форму. Так же, как и пламя камина, она не будет повторяться.

Проект выполнен в стиле ар-деко с современными элементами.

Материал для камина — керамогранит Italon Charme Extra Laurent 60 x 120 мм.

Выставка конкурсных проектов
ВЫСТАВКА КРАСИВЫЕ ДОМА - 2026

ФОТОГАЛЕРЕЯ
ЭКСПОЗИЦИИ
КОНКУРСНЫХ
ПРОЕКТОВ

КАК ЭТО БЫЛО
Выставка конкурсных проектов проходит дважды в год (Весна | Осень)

Отзывы

Можно использовать **жирный**, *курсив*, [ссылку](https://example.com), списки через - или 1.
Пока отзывов нет. Будьте первым.